Žaborić:
Neubau-Erdgeschosswohnung mit Garten in Strandnähe - Žaborić
Objekt-Nr.: KJA-00002








































Preis:
185.000 €
Wohnfläche ca.:
44 m²
Zimmeranzahl:
2
In äußerst attraktiver Lage von Žaborić, nur 200 Meter vom gepflegten Kiesstrand
und 300 Meter vom Ortszentrum entfernt, präsentiert sich diese moderne
Einzimmerwohnung im Erdgeschoss eines hochwertigen Neubaus aus dem Jahr
2025. Die nach Osten und Westen ausgerichtete Wohnung mit einer Nutzfläche von
44,34 Quadratmetern ist vollständig fertiggestellt, sofort bezugsfertig und verfügt
über großzügige private Außenbereiche.
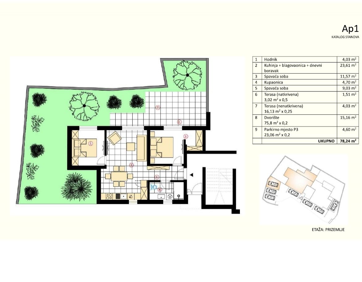
Raumaufteilung
Die durchdacht gestaltete Wohnung umfasst einen Flur, der zu den verschiedenen
Wohnbereichen führt. Der offene Bereich mit Küche, Essbereich und Wohnzimmer
bildet das Herzstück der Wohnung und bietet direkten Zugang zur überdachten
Terrasse. Das Schlafzimmer verfügt über einen separaten Zugang zum gepflasterten
Hof. Ein modernes Badezimmer komplettiert das Raumangebot.
Großzügige Außenbereiche
Ein besonderes Highlight dieser Erdgeschosswohnung sind die vielfältigen…
Außenbereiche. Die überdachte Terrasse von 5,82 Quadratmetern, die vom
Wohnbereich aus zugänglich ist, geht in einen kleinen Blumengarten von 4,93
Quadratmetern über. Zusätzlich verfügt das Schlafzimmer über einen Zugang zum
gepflasterten Hof mit einer Fläche von 24,62 Quadratmetern, der einen perfekten
Ort zum Entspannen und für gesellige Zusammenkünfte im Freien bietet.
Die Ost-West-Ausrichtung garantiert eine optimale Nutzung der verschiedenen
Außenbereiche zu unterschiedlichen Tageszeiten, wobei morgens die Ostsonne und
abends die Westsonne genossen werden kann.
Wohnungstyp: Erdgeschoss
Küche: Einbauküche
Bad: Dusche
Anzahl Schlafzimmer: 1
Anzahl Badezimmer: 1
Terrasse: 1
Keller: nein
Klimaanlage: ja
Als Ferienwohnung geeignet: ja
Umgebung: Einkaufsmöglichkeit, Strandnähe
Anzahl der Parkflächen: 1 x Garage
Qualität der Ausstattung: gehoben
Baujahr: 2025
Zustand: Erstbezug
Energieklasse: A+
Die von uns gemachten Informationen beruhen auf Angaben des Verkäufers bzw. der Verkäuferin. Für die Richtigkeit und Vollständigkeit der Angaben kann keine Gewähr bzw. Haftung übernommen werden. Ein Zwischenverkauf und Irrtümer sind vorbehalten.
AUF WUNSCH empfehlen wir Ihnen unsere Finanzierungsexperten, die Ihnen ein kostenloses und unverbindliches Finanzierungsangebot unterbreiten.
Wir weisen auf unsere Allgemeinen Geschäftsbedingungen hin. Durch weitere Inanspruchnahme unserer Leistungen erklären Sie die Kenntnis und Ihr Einverständnis.
Das könnte Ihnen auch gefallen
273659 - Wohnung in Murter
274723 - Wohnung in Vodice

Katzmann Immobilien GmbH
Herr Jörg Allmannsberger
Siemensstr.31a
50374 Erftstadt
Telefon: +49 160 95100298
HR-22000 Žaborić




































