Tribunj:
632052 - Wohnung in Tribunj
Objekt-Nr.: DO632052








Preis:
330.540 €
Wohnfläche ca.:
78 m²
Zimmeranzahl:
3
Tribunj – Neubau, ein Mehrfamilienhaus mit 9 Wohneinheiten. Das Gebäude bietet einen Panoramablick auf das Meer und besteht aus vier Etagen: Untergeschoss + Erdgeschoss + 1. Stock + 2. Stock. Das Gebäude hat ein modernes Design und wird mit hochwertigen Bodenbelägen, Innen- und Außenholzarbeiten, Klimaanlagen zum Heizen und Kühlen in jedem Raum sowie elektrischen Rollladenantrieben ausgestattet. Jede Wohneinheit verfügt über einen eigenen Parkplatz und einen Abstellraum im Untergeschoss. Das Gebäude liegt nur 700 m vom Strand Bristak und 950 m vom Zentrum sowie allen wichtigen Einrichtungen entfernt.
Der voraussichtliche Einzugstermin ist Ende 2026.
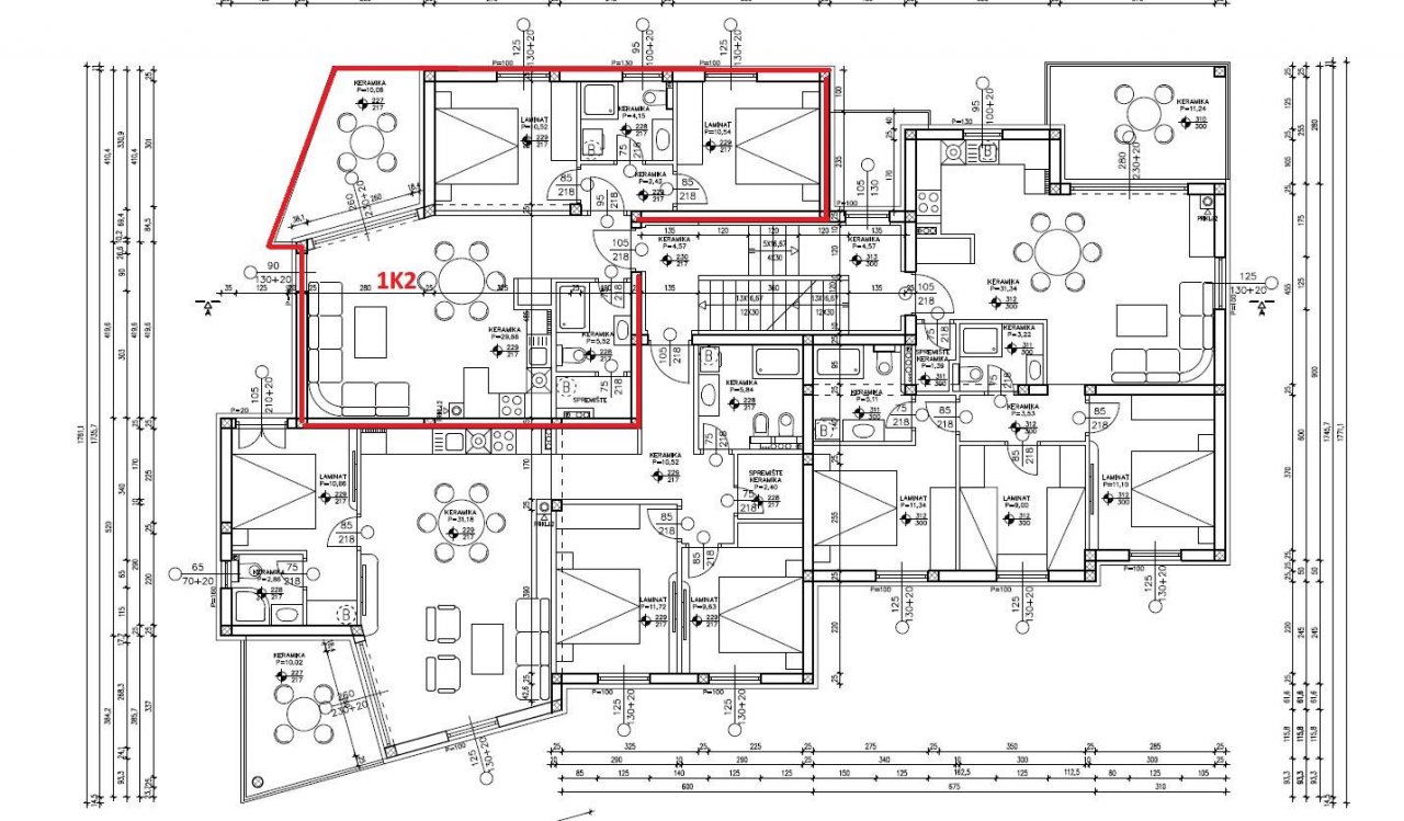
Die Wohneinheit 1K2 befindet sich im ersten Stock des Gebäudes, ist nach Südwesten ausgerichtet und verfügt über eine Nutzfläche von 78,70 m². Im vorderen Teil der Wohnung befindet sich eine großzügige Küche mit Essbereich und Wohnzimmer, mit Zugang zu einer Terrasse von 10,02 m², die Meerblick bietet, zwei Schlafzimmer, zwei Badezimmer und Abstellräume. Zur Wohnung gehört außerdem ein Stellplatz.
In diesem Gebäude ist ebenfalls eine weitere Wohneinheit verfügbar:
Wohnung PR1
Wohnung PR3
Wohnung 1K2
Wohnung 1K1
Wohnung 2K1
Wohnung 2K2
Wohnung 2K3
Meeresnähe: Strandnähe. Klimaanlage vorhanden. Ausstattung: sea view, parking, near beach.
Wohnungstyp: Etagenwohnung
Anzahl Schlafzimmer: 2
Anzahl Badezimmer: 2
Klimaanlage: ja
Umgebung: Strandnähe
Ausblick: Seeblick
Qualität der Ausstattung: normal
Zustand: Erstbezug
Das könnte Ihnen auch gefallen
274984 - Wohnung in Primošten
273807 - Wohnung in Vodice
273767 - Wohnung in Tribunj

Katzmann Immobilien GmbH
Herr Jörg Allmannsberger
Siemensstr.31a
50374 Erftstadt
Telefon: +49 160 95100298
HR-22000 Tribunj







































