Tribunj:
632043 - Wohnung in Tribunj
Objekt-Nr.: DO632043








Preis:
388.752 €
Wohnfläche ca.:
92 m²
Zimmeranzahl:
4
Tribunj – Neubau, ein Mehrfamilienhaus mit 9 Wohneinheiten. Das Gebäude bietet einen Panoramablick auf das Meer und besteht aus vier Etagen: Untergeschoss + Erdgeschoss + 1. Stock + 2. Stock. Das Gebäude hat ein modernes Design und wird mit hochwertigen Bodenbelägen, Innen- und Außenholzarbeiten, Klimaanlagen zum Heizen und Kühlen in jedem Raum sowie elektrischen Rollladenantrieben ausgestattet. Jede Wohneinheit verfügt über einen eigenen Parkplatz und einen Abstellraum im Untergeschoss. Das Gebäude liegt nur 700 m vom Strand Bristak und 950 m vom Zentrum sowie allen wichtigen Einrichtungen entfernt.
Der voraussichtliche Einzugstermin ist Ende 2026.
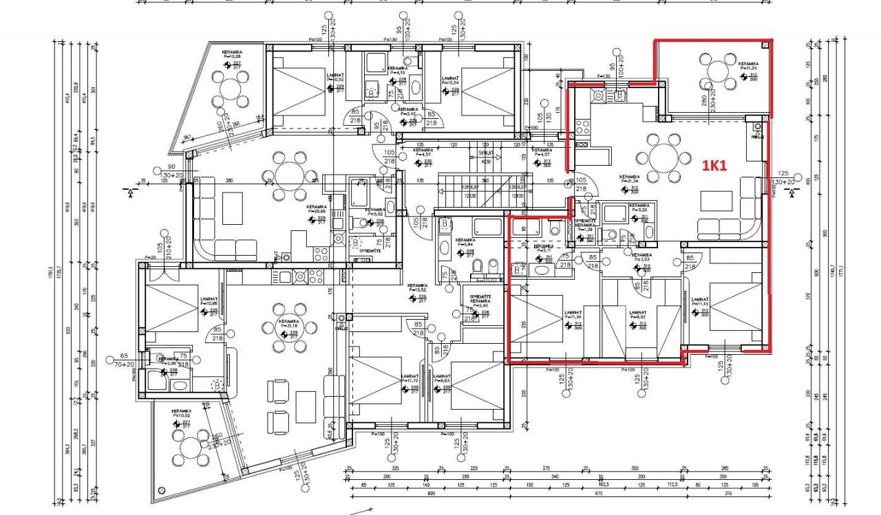
Die Wohneinheit 1K1 befindet sich im ersten Stock des Gebäudes, ist nach Nordosten ausgerichtet und verfügt über eine Nutzfläche von 92,56 m². Im vorderen Teil der Wohnung befindet sich eine großzügige Küche mit Essbereich und Wohnzimmer, mit Zugang zu einer Terrasse von 11,24 m², die Meerblick bietet. Die Wohnung umfasst außerdem ein Badezimmer, einen Abstellraum und einen Flur, der zu drei Schlafzimmern führt, von denen eines über ein eigenes Badezimmer verfügt.
Zur Wohnung gehören ein Kellerabteil und ein Stellplatz.
In diesem Gebäude ist ebenfalls eine weitere Wohneinheit verfügbar:
Wohnung PR1
Wohnung PR3
Wohnung 1K2
Wohnung 1K3
Wohnung 2K1
Wohnung 2K2
Wohnung 2K3
Meeresnähe: Strandnähe. Klimaanlage vorhanden. Ausstattung: sea view, parking, near beach.
Wohnungstyp: Etagenwohnung
Anzahl Schlafzimmer: 3
Anzahl Badezimmer: 2
Klimaanlage: ja
Umgebung: Strandnähe
Ausblick: Seeblick
Qualität der Ausstattung: normal
Zustand: Erstbezug
Das könnte Ihnen auch gefallen

Katzmann Immobilien GmbH
Herr Jörg Allmannsberger
Siemensstr.31a
50374 Erftstadt
Telefon: +49 160 95100298
HR-22000 Tribunj














































