Primošten:
274952 - Wohnung in Primošten
Objekt-Nr.: LITO274952




































Preis:
630.000 €
Wohnfläche ca.:
123 m²
Zimmeranzahl:
4
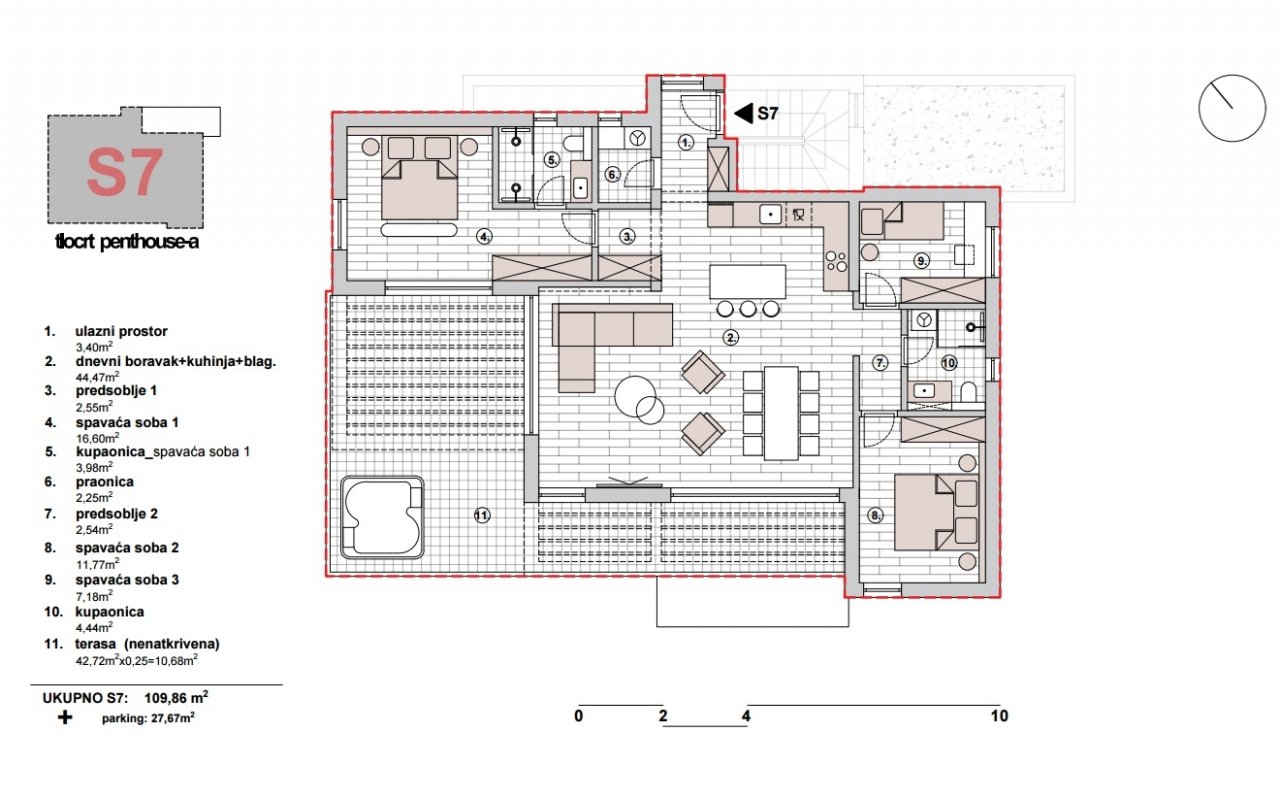
Primošten – Exklusives Penthouse mit großer Terrasse, Jacuzzi und Panoramablick. An ruhiger und erhöhter Lage oberhalb von Primošten, mit einem atemberaubenden Panoramablick auf das Meer und den malerischen Ort, befindet sich dieses luxuriöse Penthouse, das die gesamte oberste (3.) Etage eines modernen Neubaus einnimmt, der nach höchsten Standards des zeitgemäßen Wohnens konzipiert wurde. Das Gebäude liegt an einer idealen Position: gut mit dem Auto erreichbar, in der Nähe aller wichtigen Einrichtungen und dennoch ausreichend abgeschirmt, um absolute Ruhe und Privatsphäre zu genießen. Das Penthouse verfügt über eine Gesamtnutzfläche von 123,70 m², ist nach Südosten ausgerichtet und bietet ein außergewöhnliches Gefühl von Geräumigkeit und Exklusivität.…
Es besteht aus drei komfortablen Schlafzimmern, zwei elegant ausgestatteten Badezimmern, einem Hauswirtschaftsraum sowie einem großzügigen Wohnbereich mit Küche und Esszimmer, von dem aus man auf die beeindruckende 42,72 m² große Terrasse mit Jacuzzi gelangt – der perfekte Ort zum Entspannen und Genießen des offenen Meerblicks und der umliegenden Natur. Zur hochwertigen Ausstattung gehören: Fußbodenheizung, Aluminium-/PVC-Fenster mit Insektenschutz und elektrischen Rollläden, Bodenbeläge aus hochwertiger Keramik und erstklassigem Parkett, Tiefgaragenstellplatz mit 27,67 m², inklusive Ladestation für Elektro- und Hybridfahrzeuge. Das Gebäude befindet sich derzeit im Bau, die Fertigstellung und der Einzug sind für den Sommer 2026 geplant. Der nächste Strand ist ca. 1.250 m, das Zentrum von Primošten ca. 1.800 m entfernt.
Meeresnähe: Strandnähe. Klimaanlage vorhanden. Ausstattung: sea view, parking, near beach.
Wohnungstyp: Etagenwohnung
Anzahl Schlafzimmer: 3
Anzahl Badezimmer: 2
Klimaanlage: ja
Umgebung: Strandnähe
Ausblick: Seeblick
Qualität der Ausstattung: normal
Zustand: Erstbezug
Das könnte Ihnen auch gefallen
626936 - Wohnung in Šibenik
276122 - Wohnung in Vodice

Katzmann Immobilien GmbH
Herr Jörg Allmannsberger
Siemensstr.31a
50374 Erftstadt
Telefon: +49 160 95100298
HR-22000 Primošten







































