Pakoštane:
653453 - Wohnung in Pakoštane
Objekt-Nr.: DO653453






































Preis:
404.958 €
Wohnfläche ca.:
115 m²
Zimmeranzahl:
3
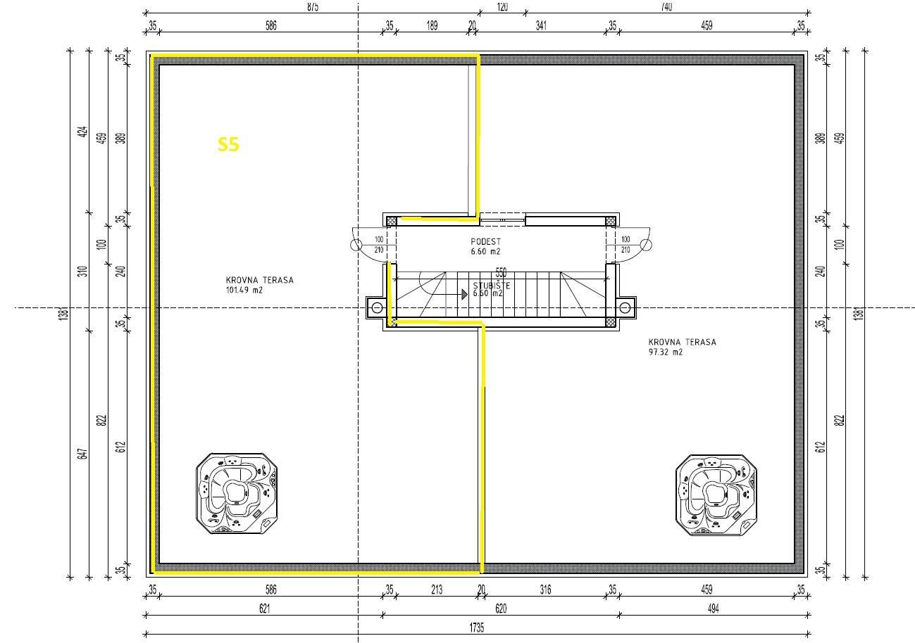
Pakoštane – Neubau, attraktive Lage, komfortable Zwei-Zimmer-Wohnung im zweiten Stock. Die Wohnung S5 befindet sich in einem Wohngebäude mit insgesamt 6 Wohnungen. Sie überzeugt durch modernes Design und eine funktionale Raumaufteilung mit einer gesamten Nutzfläche von 115,70 m².
Die Wohnung besteht aus Eingangsbereich, zwei Schlafzimmern mit Zugang zu einer Terrasse von 10,25 m², zwei Badezimmern sowie einem großzügigen offenen Wohnbereich mit Küche, Ess- und Wohnzimmer, mit Zugang zu einer Loggia von 17,46 m². Über die Treppe gelangt man zu einer Dachterrasse von 101,49 m², ideal zur Erholung.
Sie ist mit hochwertigen Materialien ausgestattet: Fußbodenheizung, Kombination aus Keramikfliesen und Parkettboden in der gesamten Wohnung, dreifach verglaste Fenster sowie elektrisch betriebene Rollläden. Klimaanlagen befinden sich im Wohnzimmer und in allen Schlafzimmern. Zur Wohnung gehört ein Parkplatz. Der voraussichtliche Einzugstermin ist Sommer 2026. Der Käufer ist von der 3%-Immobiliensteuer befreit.
Die Wohnung liegt 600 m vom Strand und 650 m vom Ortszentrum entfernt.
Meeresnähe: Strandnähe. Klimaanlage vorhanden. Ausstattung: parking, near beach.
Wohnungstyp: Etagenwohnung
Anzahl Schlafzimmer: 2
Anzahl Badezimmer: 2
Klimaanlage: ja
Umgebung: Strandnähe
Qualität der Ausstattung: normal
Zustand: Erstbezug
Das könnte Ihnen auch gefallen
280669 - Wohnung in Vodice
275407 - Wohnung in Vodice
290403 - Wohnung in Vodice

Katzmann Immobilien GmbH
Herr Jörg Allmannsberger
Siemensstr.31a
50374 Erftstadt
Telefon: +49 160 95100298
HR-22000 Pakoštane

































