Tisno:
Property ID: LITO274845
















Price:
621.600 €
Living space:
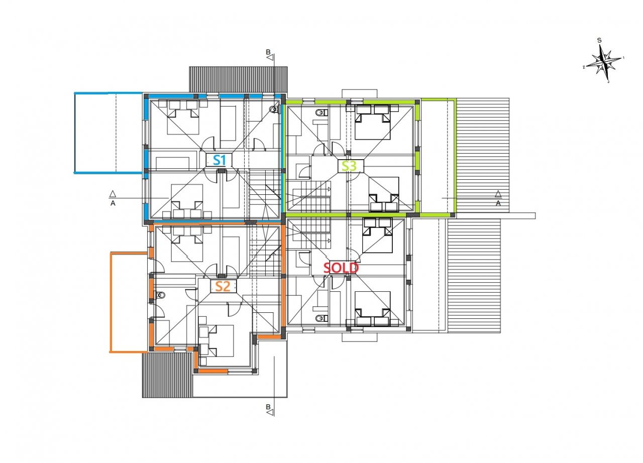
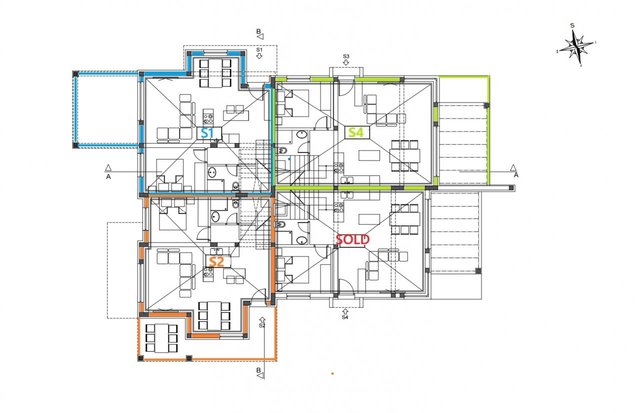
109 sq. m.
No. of rooms:
4
Meeresnähe: Strandnähe. Klimaanlage vorhanden. Swimmingpool vorhanden. Ausstattung: near beach.
Type of house: Detached house
Number of bedrooms: 3
Number of bathrooms: 2
Pool: yes
Air condition: yes
Surroundings: Close to the beach
Quality of fittings: Regular
Condition: First occupier
Upon signing a purchase contract, a placement / termination fee of 5.8% including 19% VAT on the purchase price by the buyer will be charged.
The information provided by us is based on information provided by the seller or the seller. For the correctness and completeness of the information, no responsibility or liability can be accepted. An intermediate sale and mistakes are reserved.
ON REQUEST we recommend financing experts from renowned houses such Bausparkasse Mainz, Deutsche Vermögensberatung and others.
We refer to our terms and conditions. Through further use our services do you explain your knowledge and consent.
You might also like
Einfamilienhaus in ruhiger Lage von Benkovac
569165 - Villa in Šibenik - Okolica
575871 - Villa in Šibenik - Okolica

Katzmann Immobilien GmbH
Mr. Jörg Allmannsberger
Siemensstr.31a
50374 Erftstadt
Phone: +49 160 95100298
HR-22000 Tisno
























































