Primošten:
Referencia: LITO274956
































Precio:
337.000 €
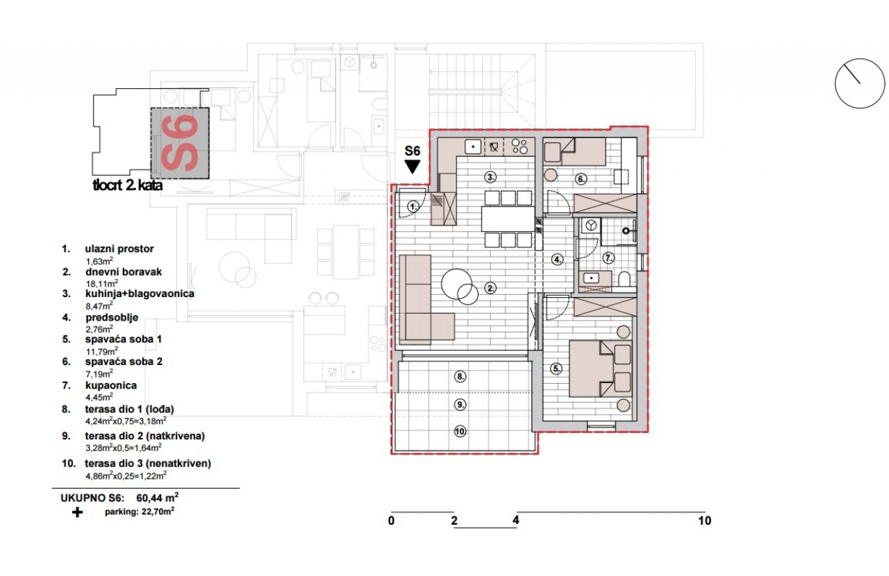
Superficie útil aprox.:
71 m²
Cantidad habitaciones:
3
Meeresnähe: Strandnähe. Klimaanlage vorhanden. Ausstattung: sea view, parking, near beach.
Tipo de vivienda: Apartamento
Cantidad dormitorios: 2
Cantidad baños: 1
Aire acondicionado: sí
entorno: proximidad al mar
Vista: Vista al lago/mar
Calidad del mobiliario: Normal
Estado: A estrenar
Al momento de firmar un contrato de compra, se le cobrará una cuota de colocación / terminación de un 5,8% incluyendo 19% de IVA sobre el precio de compra por el comprador.
La información proporcionada por nosotros se basa en la información proporcionada por el vendedor o el vendedor. Para la exactitud e integridad de la información, ninguna responsabilidad puede ser aceptada. Una venta intermedia y los errores son reservados.
A PETICIÓN le recomendamos la financiación de expertos de la talla de casas Bausparkasse Mainz, Deutsche Vermögensberatung y otros.
Nos referimos a nuestros términos y condiciones. A través de más utilizar nuestros servicios usted explicar su conocimiento y consentimiento.
También te podría gustar
639902 - Wohnung in Vodice
275485 - Wohnung in Tribunj
650134 - Wohnung in Tribunj

Katzmann Immobilien GmbH
Señor Jörg Allmannsberger
Siemensstr.31a
50374 Erftstadt
Teléfono: +49 160 95100298
HR-22000 Primošten































