Primošten:
Ref.n°.: LITO274962






























Prezzo:
260.000 €
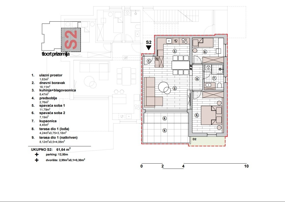
Superficie ca.:
66 mq.
Vani :
3
Arredamento
Meeresnähe: Strandnähe. Klimaanlage vorhanden. Ausstattung: sea view, parking, near beach.
Ulteriori informazioni
Tipologia: Appartamento su un piano
Numero delle camere da letto: 2
Numero dei bagni: 1
Area condizionata: Si
Dintorni: Prossimità della spiaggia
Panorama: Vista sul mare
Qualità dell´arredamento: Normale
Stato: Nuovo
Potrebbe anche piacerti
Šibenik - Okolica
n. LITO283286
283286 - Wohnung in Šibenik - Okolica
179.000 €
2
Vodice
n. LITO278742
278742 - Wohnung in Vodice
229.000 €
3
Tisno
n. LITO274481
274481 - Wohnung in Tisno
630.000 €
3
Il vostro referente

Katzmann Immobilien GmbH
Signor Jörg Allmannsberger
Siemensstr.31a
50374 Erftstadt
Telefono: +49 160 95100298
Oggetto-Indirizzo
HR-22000 Primošten


















































