Primošten:
Ref.n°.: LITO295439






























Prezzo:
1.100.000 €
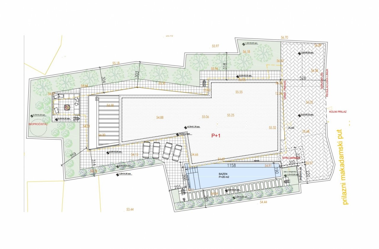
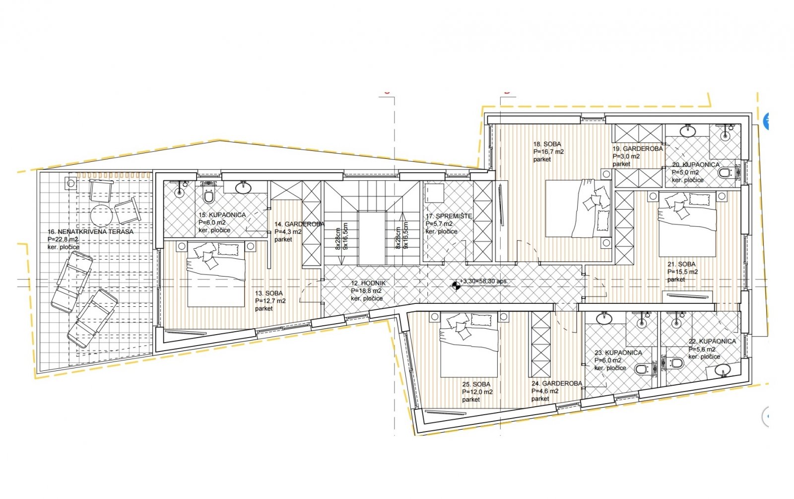
Superficie ca.:
257 mq.
Vani :
5
Arredamento
Meeresnähe: Strandnähe. Klimaanlage vorhanden. Swimmingpool vorhanden. Ausstattung: sea view, parking, near beach.
Ulteriori informazioni
Tipo di casa: Casa indipendente
Numero delle camere da letto: 4
Numero dei bagni: 4
Piscina: Si
Area condizionata: Si
Dintorni: Prossimità della spiaggia
Panorama: Vista sul mare
Qualità dell´arredamento: Normale
Stato: Nuovo
Potrebbe anche piacerti
Vodice
n. LITO275374
275374 - Villa in Vodice
260.000 €
2
Vodice
n. LITO302365
302365 - Villa in Vodice
450.000 €
4
Il vostro referente

Katzmann Immobilien GmbH
Signor Jörg Allmannsberger
Siemensstr.31a
50374 Erftstadt
Telefono: +49 160 95100298
Oggetto-Indirizzo
HR-22000 Primošten


































































