Šibenik - Okolica:
Ref.n°.: LITO302366














Prezzo:
202.337 €
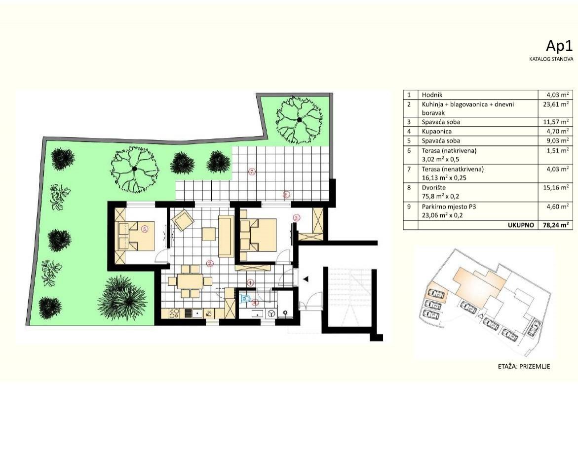
Superficie ca.:
63 mq.
Vani :
3
Arredamento
Meeresnähe: Strandnähe. Klimaanlage vorhanden. Ausstattung: parking, near beach.
Ulteriori informazioni
Tipologia: Appartamento su un piano
Numero delle camere da letto: 2
Numero dei bagni: 1
Area condizionata: Si
Dintorni: Prossimità della spiaggia
Qualità dell´arredamento: Normale
Stato: Nuovo
Potrebbe anche piacerti
Vodice
n. LITO274586
274586 - Wohnung in Vodice
266.000 €
3
Vodice
n. LITO303107
303107 - Wohnung in Vodice
188.000 €
3
Marina
n. DO666826
666826 - Wohnung in Marina
1 €
3
Il vostro referente

Katzmann Immobilien GmbH
Signor Jörg Allmannsberger
Siemensstr.31a
50374 Erftstadt
Telefono: +49 160 95100298
Oggetto-Indirizzo
HR-22000 Šibenik - Okolica


































