Šibenik - Okolica:
numeru objektu: LITO287999








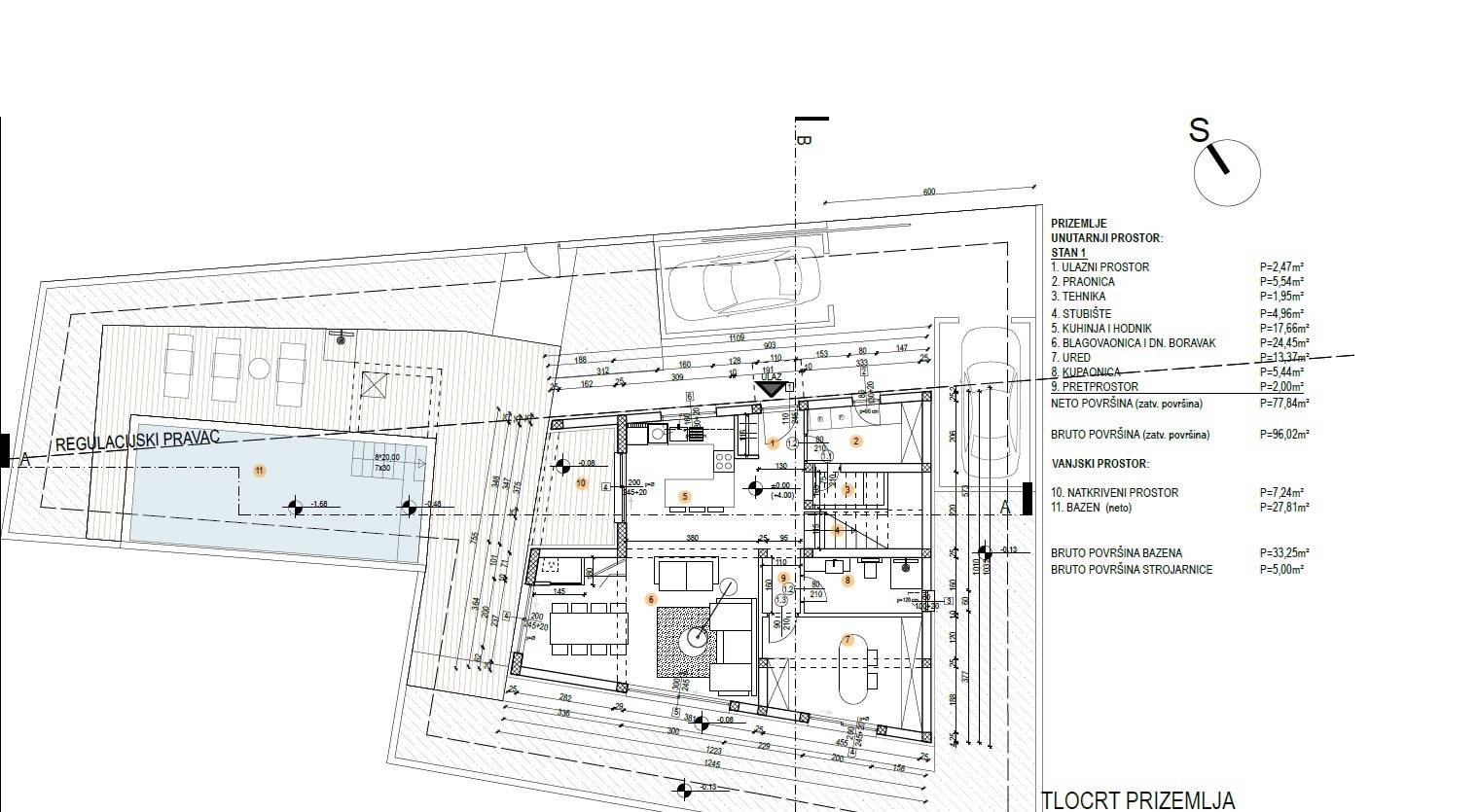
Dzialka okolo:
2.133 m2
Cena:
174.906 €
Wyposażenie
Grundstücksmerkmale: near beach.
Dalsze dane
rodzaj uzytkowania: mieszkanie
okolica: bliskość plaży
Może Ci się też spodobać
Osoba odpowiedzialna za kontakt

Katzmann Immobilien GmbH
pan Jörg Allmannsberger
Siemensstr.31a
50374 Erftstadt
telefon: +49 160 95100298
Objekt-Adres
HR-22000 Šibenik - Okolica

















