Vodice:
numeru objektu: DO639825












Cena:
220.000 €
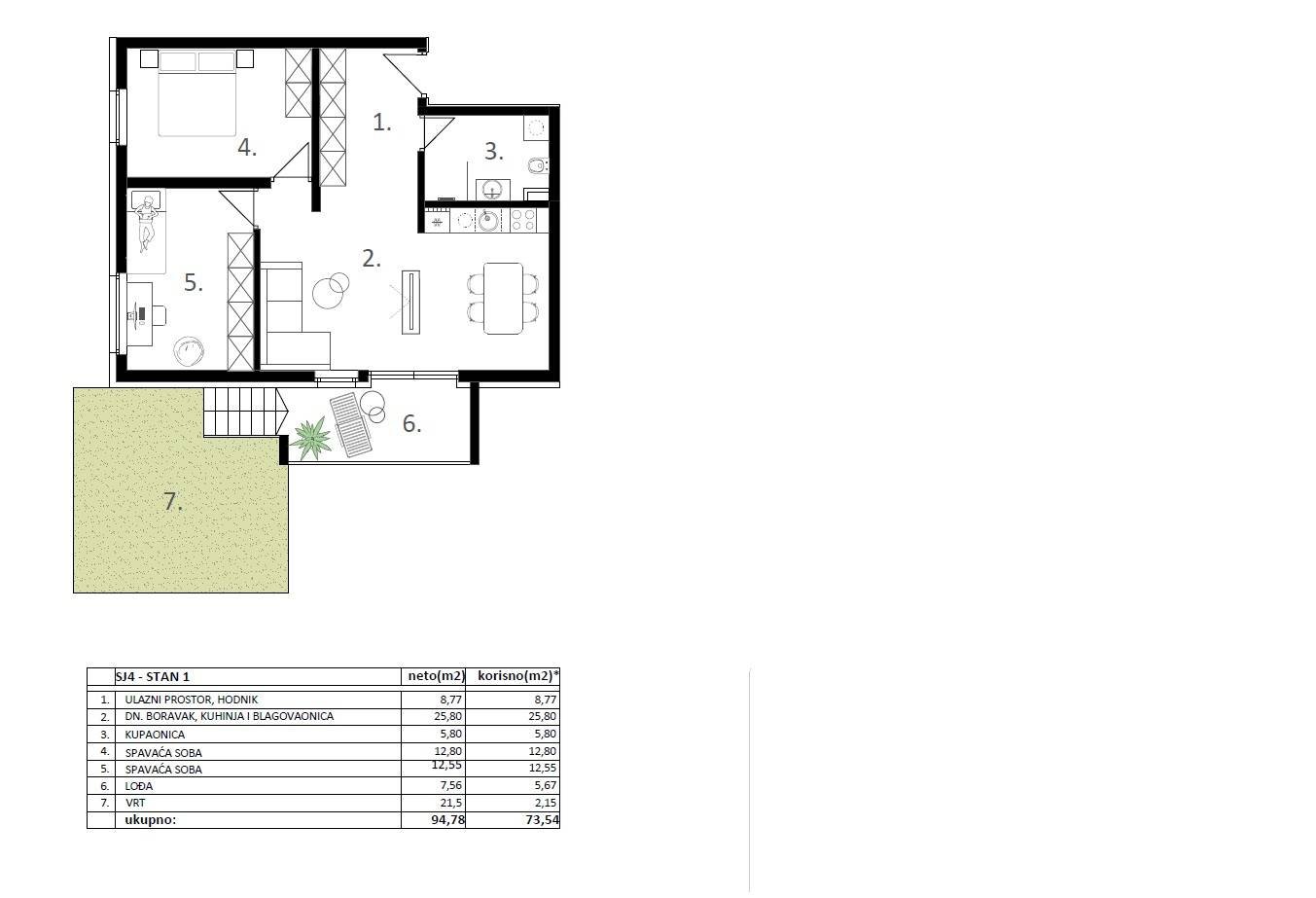
Powierzchnia mieszkalna okolo:
55 m2
Liczba izb:
3
Wyposażenie
Meeresnähe: Strandnähe. Klimaanlage vorhanden. Ausstattung: near beach.
Dalsze dane
Typ mieszkania: apartament
ilosc sypialni: 2
ilosc lazienek: 1
klimatyzacja: tak
okolica: bliskość plaży
Jakosc wyposazenia: Normalne
Stan: pierwsze wprowadzenie
Może Ci się też spodobać
Tribunj
Objekt nr DO632068
632068 - Wohnung in Tribunj
398.008 €
4
Vodice
Objekt nr DO519522
519522 - Wohnung in Vodice
257.716 €
3
Vodice
Objekt nr LITO280668
280668 - Wohnung in Vodice
260.000 €
3
Osoba odpowiedzialna za kontakt

Katzmann Immobilien GmbH
pan Jörg Allmannsberger
Siemensstr.31a
50374 Erftstadt
telefon: +49 160 95100298
Objekt-Adres
HR-22000 Vodice




































