Tisno:
numeru objektu: LITO276057








































Cena:
295.000 €
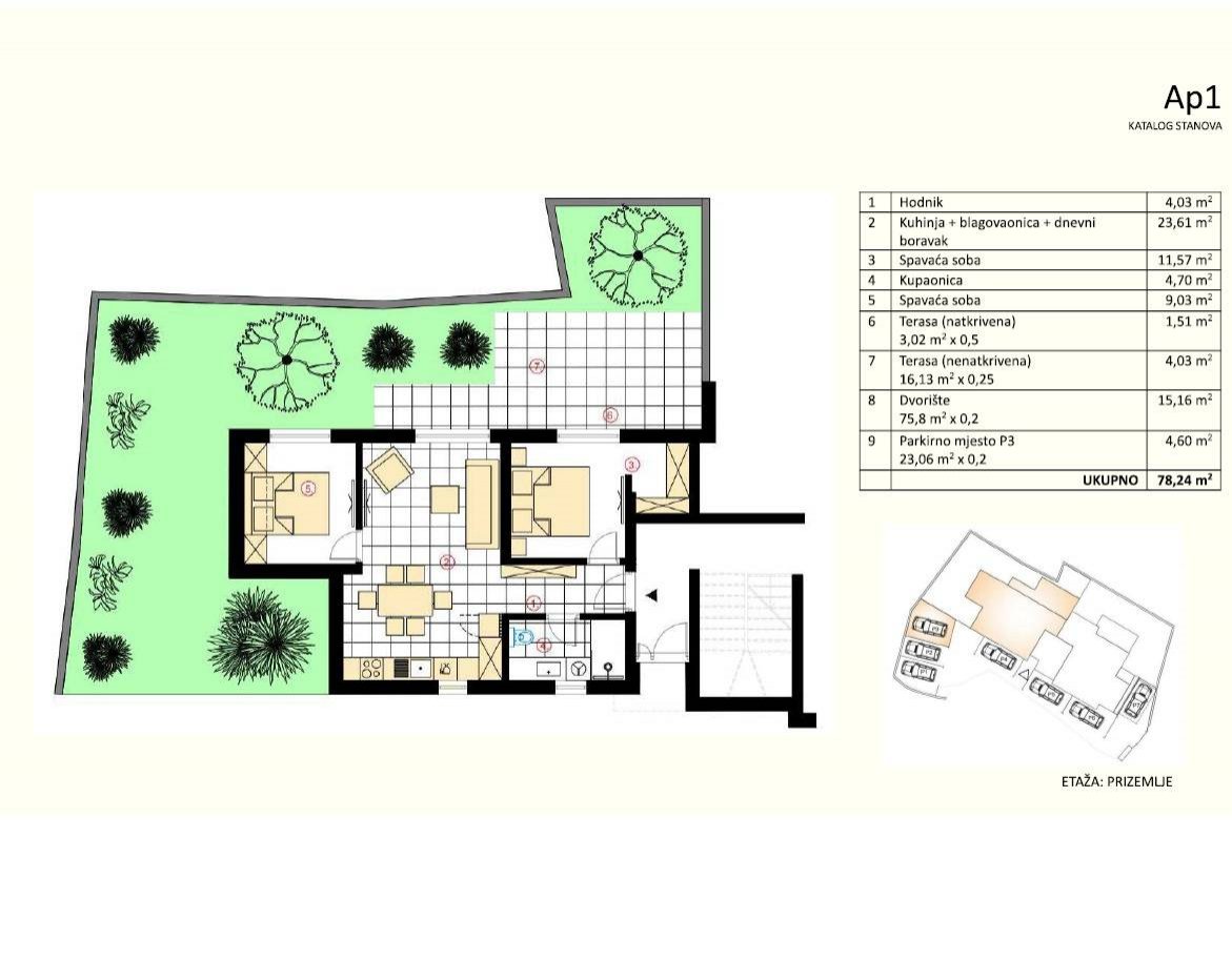
Powierzchnia mieszkalna okolo:
86 m2
Liczba izb:
4
Wyposażenie
Meeresnähe: Strandnähe. Klimaanlage vorhanden. Ausstattung: sea view, parking, near beach.
Dalsze dane
Typ mieszkania: apartament
ilosc sypialni: 3
ilosc lazienek: 2
klimatyzacja: tak
okolica: bliskość plaży
Widok: Widok na morze lub jezioro
Jakosc wyposazenia: Normalne
Stan: pielegnowane
Może Ci się też spodobać
Vodice
Objekt nr DO639792
639792 - Wohnung in Vodice
200.000 €
2
Vodice
Objekt nr LITO274433
274433 - Wohnung in Vodice
336.800 €
3
Osoba odpowiedzialna za kontakt

Katzmann Immobilien GmbH
pan Jörg Allmannsberger
Siemensstr.31a
50374 Erftstadt
telefon: +49 160 95100298
Objekt-Adres
HR-22000 Tisno































