Šibenik - Okolica:
287999 - Grundstück in Šibenik - Okolica
Objekt-Nr.: LITO287999








Grundstück ca.:
2.133 m²
Preis:
174.906 €
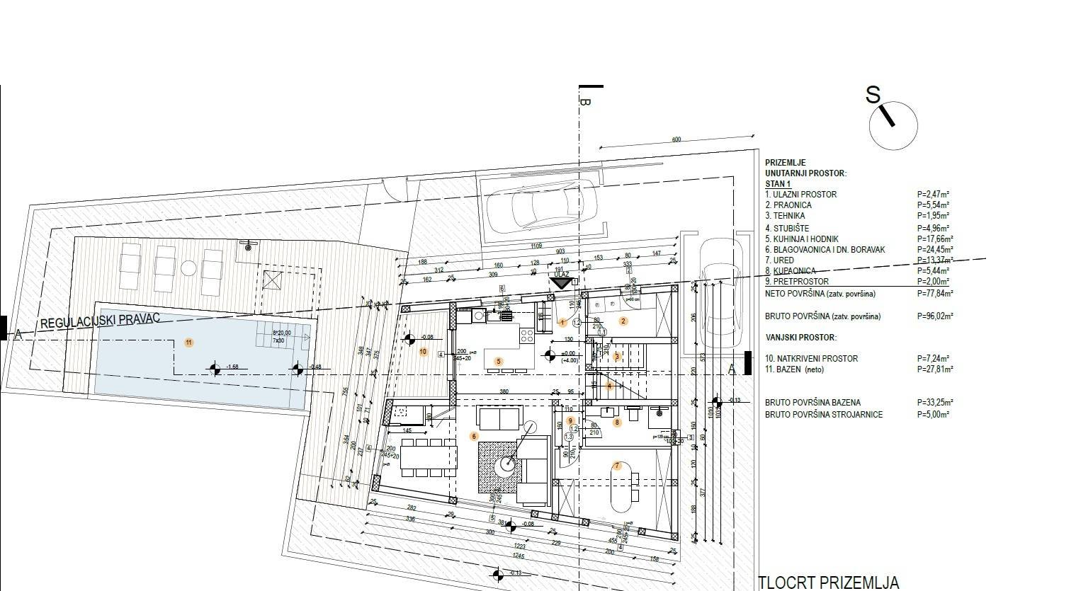
Bilice – Baugrundstück mit einer Fläche von 2.133 m², regelmäßiger Form, gelegen in ruhiger Umgebung. Das Grundstück ist eben, geräumt und nicht eingezäunt, was eine schnelle Vorbereitung für den Bau ermöglicht. Gemäß dem Raumordnungsplan der Gemeinde Bilice – II. Änderungen und Ergänzungen befindet sich die Parzelle innerhalb des unbebauten Teils des Baugebiets. Auf dem Grundstück ist der Bau eines Einfamilienwohnhauses mit bis zu 4 separaten Wohn-einheiten zulässig. Zusätzlich besteht die Möglichkeit, das Grundstück in mehrere kleinere Bauparzellen zu parzellieren, gemäß den geltenden raumplanerischen Bestimmungen.
• Maximale Bruttogeschossfläche: bis zu 400 m²
• Bauweise: freistehend, Doppelhaus oder Reihenhaus
Bauvorschriften für freistehende Gebäude:
• Mindestgrundstücksgröße:
o 240 m² (für eingeschossige Gebäude)
o 400 m² (für mehrgeschossige Gebäude)
• Maximaler Bebauungsgrad (KIG): 0,3 (30 %)
• Mindestbreite des Grundstücks:
o 12,00 m (für eingeschossige Gebäude)
o 16,00 m (für mehrgeschossige Gebäude)
• Maximale Geschossigkeit: UG + EG + 2 OG oder UG + EG + 1 OG + DG.
Die Infrastruktur befindet sich in unmittelbarer Nähe des Grundstücks. Die Entfernung zum Meer beträgt ca. 5,5 km, zum Ortszentrum ca. 2 km.
Grundstücksmerkmale: near beach.
Nutzungsart: Wohnen
Umgebung: Strandnähe
Das könnte Ihnen auch gefallen
540114 - Grundstück in Vodice
274370 - Grundstück in Vodice

Katzmann Immobilien GmbH
Herr Jörg Allmannsberger
Siemensstr.31a
50374 Erftstadt
Telefon: +49 160 95100298
HR-22000 Šibenik - Okolica




















