Vodice:
639815 - Wohnung in Vodice
Objekt-Nr.: DO639815












Preis:
180.000 €
Wohnfläche ca.:
50 m²
Zimmeranzahl:
2
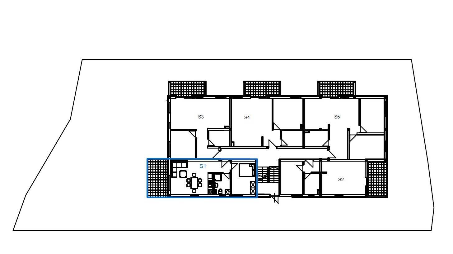
Vodice, Neubau, attraktive Lage, das Wohngebäude umfasst insgesamt 14 Wohneinheiten.
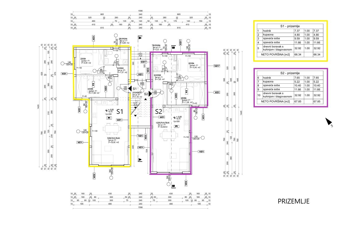
Die Wohnung SJ6 befindet sich im 1.stock des Gebäudes und verfügt über eine Nutzfläche von 50,15 m². Sie besteht aus einem Eingangsflur, einem Badezimmer, ein Schlafzimmer, einer Küche und einem Wohnzimmer mit Zugang zu einer 11 m² großen Loggia.
Die Wohnung zeichnet sich durch modernes Design und eine funktionale Raumaufteilung aus. Sie ist mit Klimaanlagen im Wohnzimmer und im Schlafzimmer, einer einbruchssicheren Eingangstür, PVC-Fenstern sowie moderner Badezimmereinrichtung ausgestattet. Ein oder zwei Stellplätze können je nach Verfügbarkeit erworben werden.
Sie befindet sich 800 m vom Meer und 500 m vom Stadtzentrum sowie allen wichtigen Einrichtungen entfernt. Der voraussichtliche Einzugstermin ist Sommer 2026. Der Käufer ist von der 3%-igen Grundsteuer befreit.
Meeresnähe: Strandnähe. Klimaanlage vorhanden. Ausstattung: near beach.
Wohnungstyp: Etagenwohnung
Anzahl Schlafzimmer: 1
Anzahl Badezimmer: 1
Klimaanlage: ja
Umgebung: Strandnähe
Qualität der Ausstattung: normal
Zustand: Erstbezug
Das könnte Ihnen auch gefallen
633447 - Wohnung in Vodice
274424 - Wohnung in Vodice
290406 - Wohnung in Vodice

Katzmann Immobilien GmbH
Herr Jörg Allmannsberger
Siemensstr.31a
50374 Erftstadt
Telefon: +49 160 95100298
HR-22000 Vodice






























