Vodice:
285358 - Grundstück in Vodice
Objekt-Nr.: LITO285358




























Grundstück ca.:
1.536 m²
Preis:
620.000 €
Srima, in ruhiger Umgebung, 420m vom Strand — ein Baugrundstück mit einer Fläche von 1.536 m².
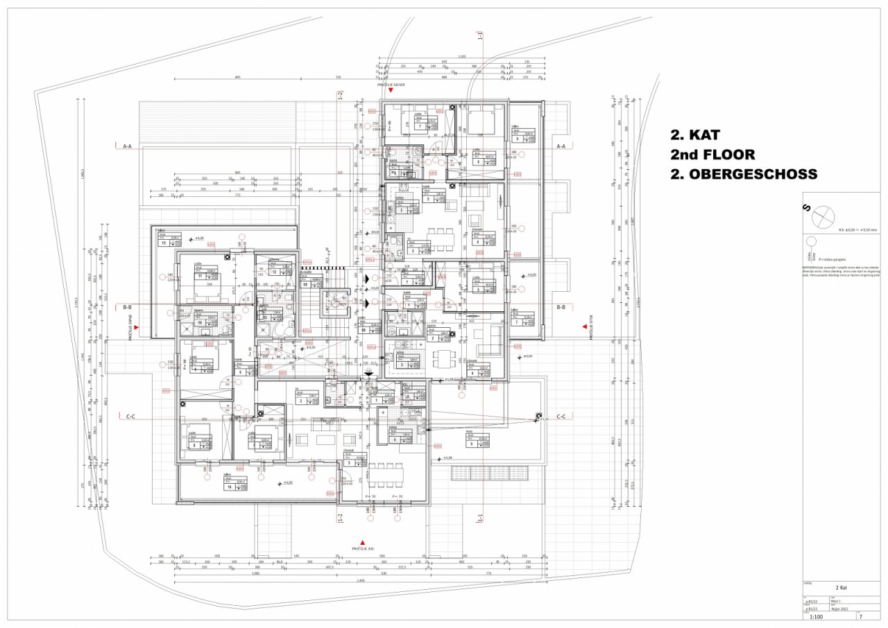
Für das Grundstück wurde bereits die Projektdokumentation erstellt und der Antrag auf Erteilung der Baugenehmigung für den Bau eines Mehrfamilienhauses mit 11 Wohneinheiten eingereicht. Das geplante Gebäude hat einen Kellergeschoss mit Tiefgarage sowie einen Swimmingpool und eine Geschossigkeit von S+EG+1+2 mit einer gesamten Nettowohnfläche von 2.192 m².
Gemäß dem gültigen städtebaulichen Plan der Stadt Vodice befindet sich das Grundstück in der Zone M – 1.3.
Das Grundstück hat eine rechteckige Form: die Länge entlang der Zufahrtsstraße beträgt ca. 46 m, die Breite ca. 38 m. Die vollständige Infrastruktur befindet sich unmittelbar am Grundstück.
Die Entfernung zum Meer und zum gepflegten Strand beträgt 420 m, und zum Stadtzentrum 1.500 m.
Grundstücksmerkmale: near beach.
Nutzungsart: Wohnen
Umgebung: Strandnähe
Das könnte Ihnen auch gefallen

Katzmann Immobilien GmbH
Herr Jörg Allmannsberger
Siemensstr.31a
50374 Erftstadt
Telefon: +49 160 95100298
HR-22000 Vodice






























