Vodice:
274586 - Wohnung in Vodice
Objekt-Nr.: LITO274586




















Preis:
266.000 €
Wohnfläche ca.:
88 m²
Zimmeranzahl:
3
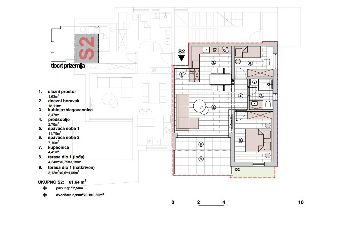
Vodice – Neubau: 2-Zimmer-Wohnung mit einer Gesamtnutzfläche von 88,70 m², gelegen im Erdgeschoss eines Wohngebäudes. Die Wohnung ist nach Osten ausgerichtet und besteht aus einem Flur, zwei Schlafzimmern, einem Badezimmer sowie einem Wohnzimmer mit Essbereich und Küche. Vom Wohnzimmer aus gelangt man auf eine überdachte Terrasse mit einer Fläche von 10,37 m² und in den Garten mit 133,87 m². Die Wohnung ist ausgestattet mit Sicherheitstüren, Klimaanlagen in allen Räumen, elektrischen Rollläden sowie Fußbodenheizung in den Badezimmern und im Wohnzimmer. Ein Außenstellplatz gehört ebenfalls zur Wohnung. Die Entfernung zum Strand beträgt 1.300 Meter, das Stadtzentrum ist 1.000 Meter entfernt.
Meeresnähe: Strandnähe. Klimaanlage vorhanden. Ausstattung: parking, near beach.
Wohnungstyp: Etagenwohnung
Anzahl Schlafzimmer: 2
Anzahl Badezimmer: 1
Klimaanlage: ja
Umgebung: Strandnähe
Qualität der Ausstattung: normal
Zustand: Erstbezug
Das könnte Ihnen auch gefallen
275761 - Wohnung in Vodice
274962 - Wohnung in Primošten
274373 - Wohnung in Vodice

Katzmann Immobilien GmbH
Herr Jörg Allmannsberger
Siemensstr.31a
50374 Erftstadt
Telefon: +49 160 95100298
HR-22000 Vodice































