Vodice:
290917 - Grundstück in Vodice
Objekt-Nr.: LITO290917




















Grundstück ca.:
406 m²
Preis:
160.000 €
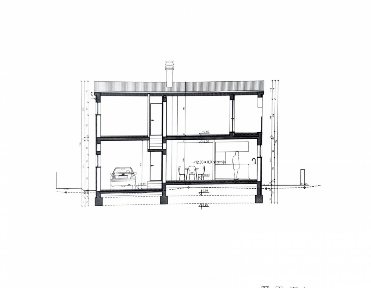
Vodice – Baugrundstück 406 m² mit rechtskräftiger Baugenehmigung und begonnenem Bau. Das Grundstück hat eine Fläche von 406 m², die Abmessungen der Parzelle betragen 18 m Breite × 23 m Länge. Die Zufahrtsstraße zum Grundstück ist eine Schotterstraße mit einer Breite von 6 m. Das Grundstück liegt in leichter Hanglage und ist nach Süden ausgerichtet. Für das Grundstück wurde eine rechtskräftige Baugenehmigung für den Bau eines freistehenden Einfamilienhauses (Erdgeschoss + Dachgeschoss) mit Garage erteilt. Die zukünftige Bruttofläche des Gebäudes beträgt 193,2 m². Die kommunalen und wasserwirtschaftlichen Beiträge wurden bezahlt. Auf dem Grundstück haben die Bauarbeiten bereits begonnen – Aushubarbeiten wurden durchgeführt, Fundamente und Bodenplatte wurden errichtet, eine Grube wurde ausgehoben und ein biologischer Klärbehälter (5 m³) installiert. Auf dem Grundstück wurde auch eine Bohrung (33 m Tiefe) durchgeführt, Wasser ist vorhanden und eine Pumpe wurde installiert. Die Entfernung zum Zentrum von Vodice beträgt 600 m und zum Strand Vruje 800 m.
Grundstücksmerkmale: near beach.
Nutzungsart: Wohnen
Umgebung: Strandnähe
Das könnte Ihnen auch gefallen

Katzmann Immobilien GmbH
Herr Jörg Allmannsberger
Siemensstr.31a
50374 Erftstadt
Telefon: +49 160 95100298
HR-22000 Vodice

















