Vodice:
N° de l´objet: DO639863












Prix:
180.000 €
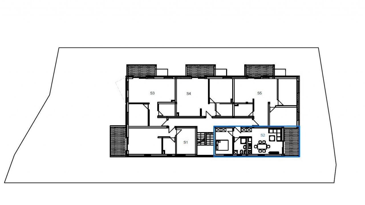
Surface habitable env.:
48 m².
Nombre de pièces:
2
Équipement
Meeresnähe: Strandnähe. Klimaanlage vorhanden. Ausstattung: near beach.
Autres données
Type d´appartement: Duplex
Nombre de chambres à coucher: 1
Nombre de salles de bain: 1
Climatisation: Oui
Environnement: Proximité de la plage
Qualité de l´équipement: Normal
État: Premier occupant
Vous pourriez aussi aimer
Vodice
Obj. N° LITO274425
274425 - Wohnung in Vodice
330.000 €
3
Murter
Obj. N° LITO273659
273659 - Wohnung in Murter
320.000 €
3
Pakoštane
Obj. N° DO653445
653445 - Wohnung in Pakoštane
320.608 €
3
Votre interlocuteur

Katzmann Immobilien GmbH
Monsieur Jörg Allmannsberger
Siemensstr.31a
50374 Erftstadt
Téléphone: +49 160 95100298
Object-Adresse
HR-22000 Vodice

































