Vodice:
N° de l´objet: DO639809












Prix:
190.000 €
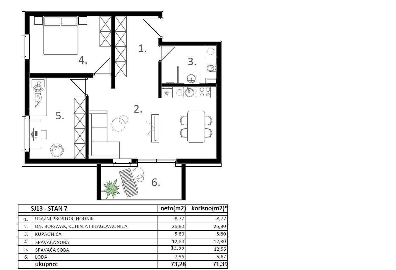
Surface habitable env.:
51 m².
Nombre de pièces:
2
Équipement
Meeresnähe: Strandnähe. Klimaanlage vorhanden. Ausstattung: near beach.
Autres données
Type d´appartement: Duplex
Nombre de chambres à coucher: 1
Nombre de salles de bain: 1
Climatisation: Oui
Environnement: Proximité de la plage
Qualité de l´équipement: Normal
État: Premier occupant
Vous pourriez aussi aimer
Vodice
Obj. N° LITO287025
287025 - Wohnung in Vodice
179.000 €
3
Vodice
Obj. N° LITO276031
276031 - Wohnung in Vodice
395.000 €
4
Murter
Obj. N° LITO273700
273700 - Wohnung in Murter
280.000 €
3
Votre interlocuteur

Katzmann Immobilien GmbH
Monsieur Jörg Allmannsberger
Siemensstr.31a
50374 Erftstadt
Téléphone: +49 160 95100298
Object-Adresse
HR-22000 Vodice














































