Primošten:
N° de l´objet: LITO274903
































Prix:
411.000 €
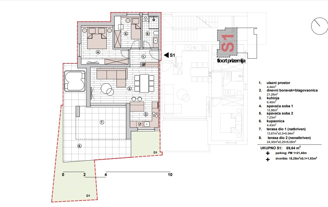
Surface habitable env.:
82 m².
Nombre de pièces:
3
Équipement
Meeresnähe: Strandnähe. Klimaanlage vorhanden. Ausstattung: sea view, parking, near beach.
Autres données
Type d´appartement: Duplex
Nombre de chambres à coucher: 2
Nombre de salles de bain: 1
Climatisation: Oui
Environnement: Proximité de la plage
Vue: Vue sur mer
Qualité de l´équipement: Normal
État: Premier occupant
Vous pourriez aussi aimer
Vodice
Obj. N° LITO277702
277702 - Wohnung in Vodice
225.000 €
4
Vodice
Obj. N° LITO275761
275761 - Wohnung in Vodice
583.198 €
4
Murter
Obj. N° DO589155
589155 - Wohnung in Murter
325.000 €
3
Votre interlocuteur

Katzmann Immobilien GmbH
Monsieur Jörg Allmannsberger
Siemensstr.31a
50374 Erftstadt
Téléphone: +49 160 95100298
Object-Adresse
HR-22000 Primošten






































