Moraira:
Casa dei sogni a Moraira: Lusso e comfort per tutta la famiglia
Ref.n°.: JA-PN-9203

Highlight architettonico moderno: villa di design luminosa con connessione armoniosa tra interno ed esterno e area piscina privata

Highlight architettonico moderno: villa di design con mura in pietra naturale mediterranea e giardini di lavanda

Architettura senza soluzione di continuità tra interno ed esterno: vivere con transizioni fluide e accento elegante in pietra naturale

Cucina design luminosa con accenti in pietra naturale - L'architettura moderna incontra l'eleganza senza tempo

Sogno di loft con accento in pietra naturale: zona giorno open space con transizione senza soluzione di continuità verso la terrazza

Architettura abitativa aperta: fusione senza soluzione di continuità tra cucina, pranzo e soggiorno con elegante accento in pietra naturale

Camera da letto luminosa con transizione senza soluzione di continuità verso la terrazza naturale - Comfort abitativo ai massimi livelli!

Cucina a soppalco con pietra naturale: open space con zona pranzo integrata e finestre panoramiche

Eleganza senza soluzione di continuità tra interno ed esterno: ampia terrazza per la zona pranzo con piscina e accenti in pietra naturale

Camera da letto luminosa con grandi finestre panoramiche a tutta altezza - il vostro rifugio tra natura e design

Eleganza naturale: accenti in pietra naturale incontrano l'architettura moderna in vetro - la vostra nuova casa con un fascino senza tempo!

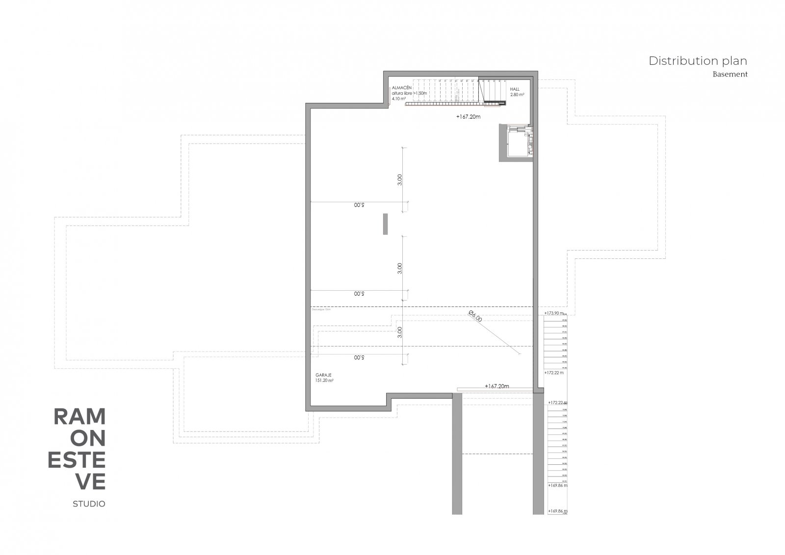
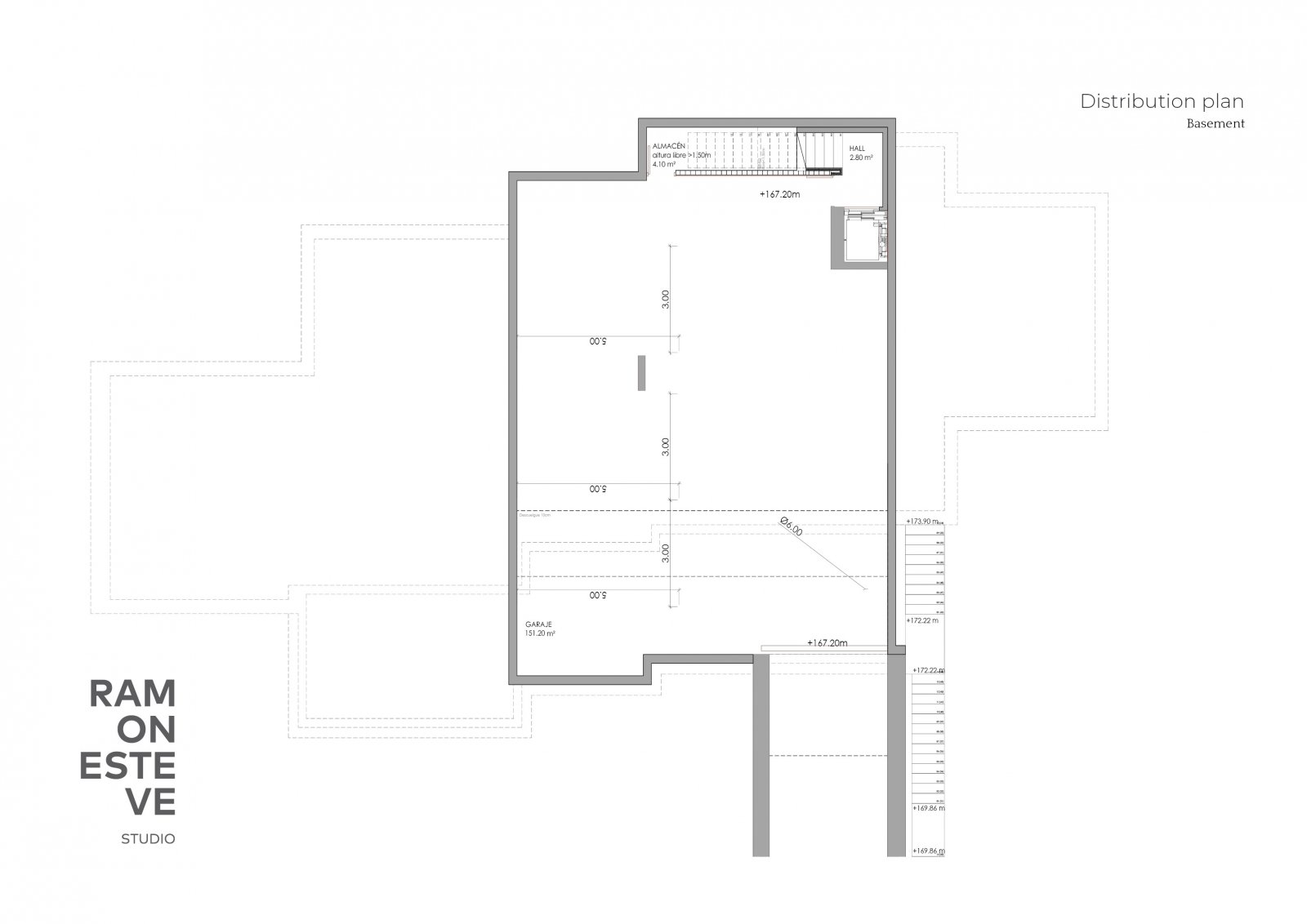
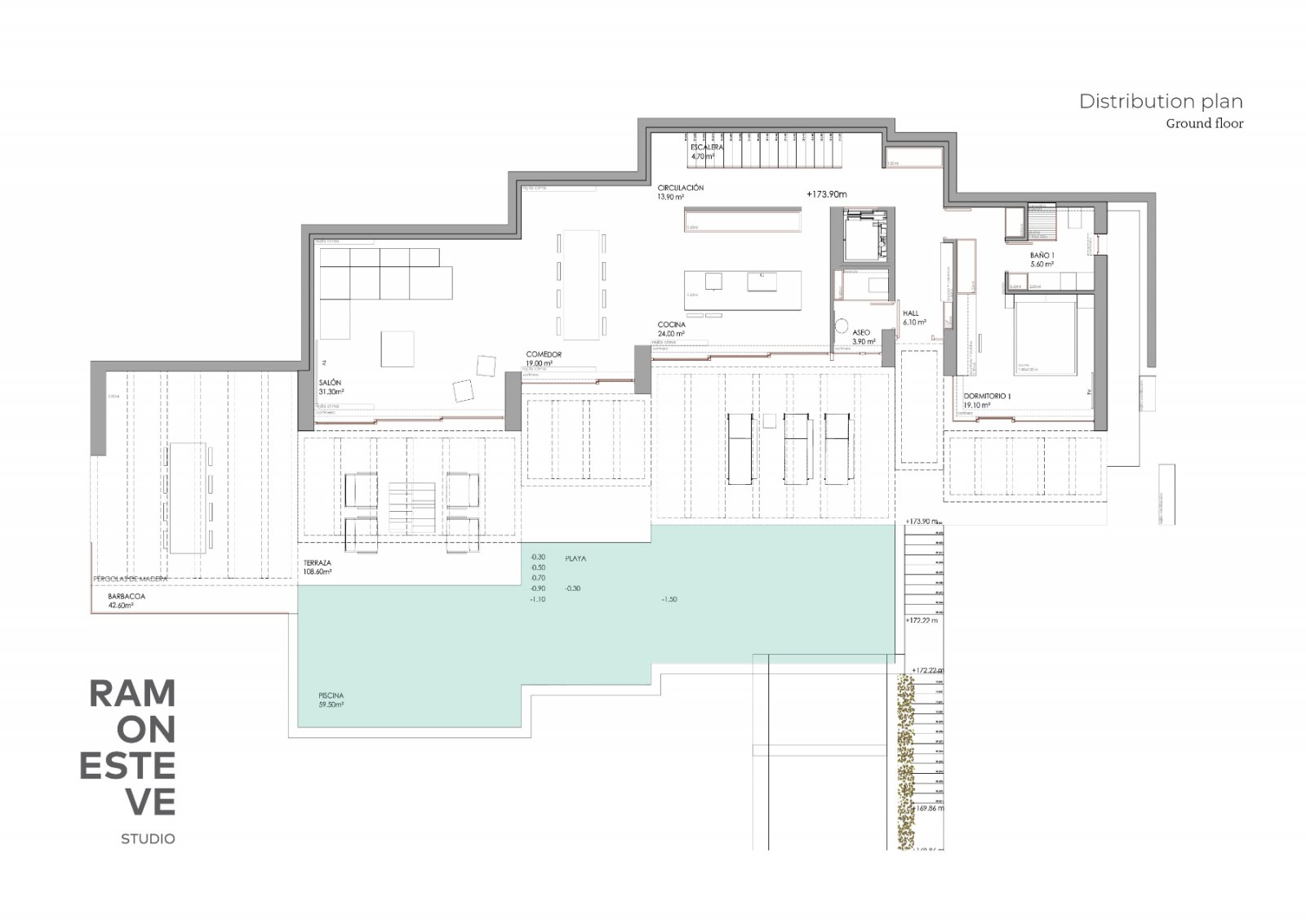
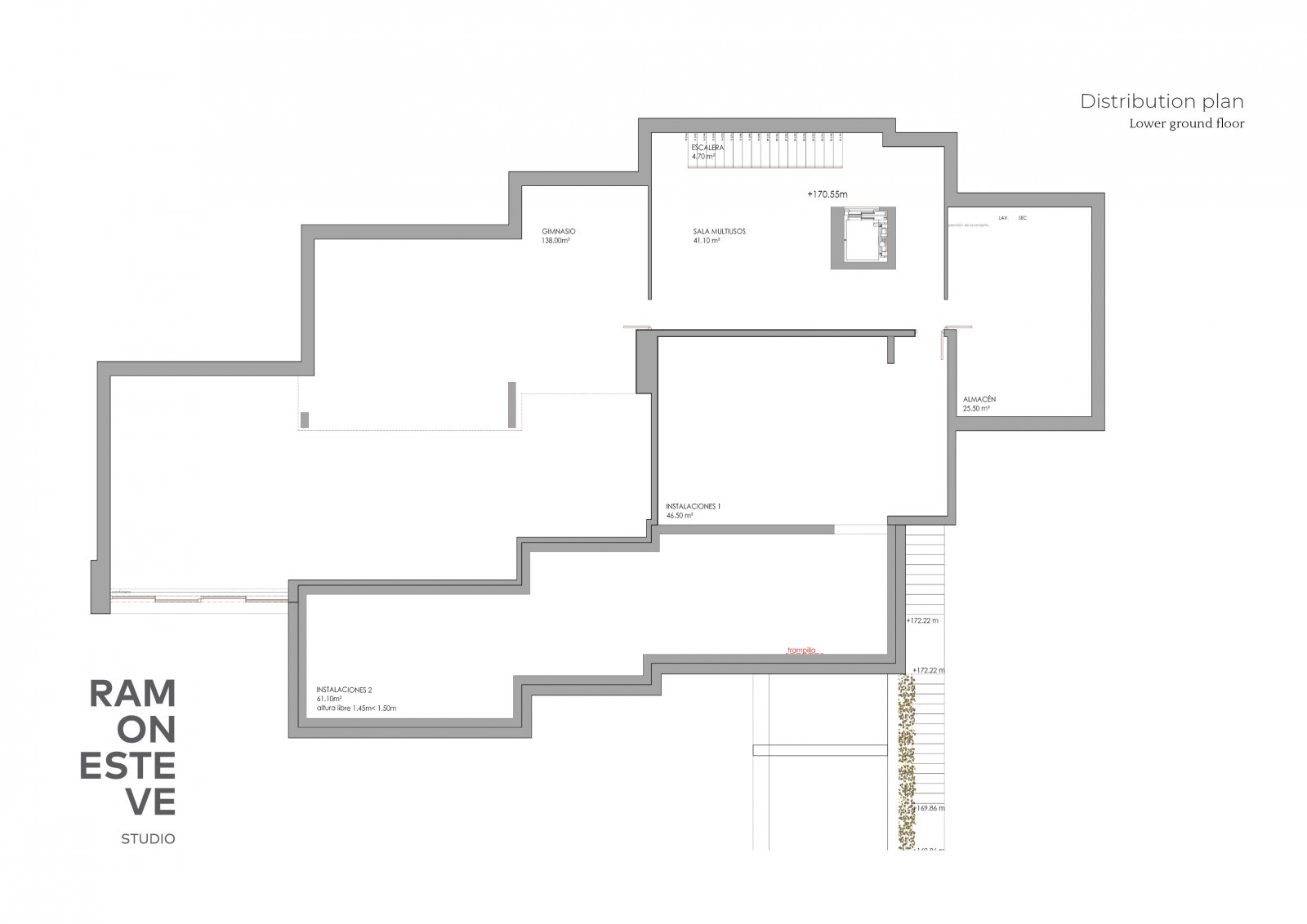
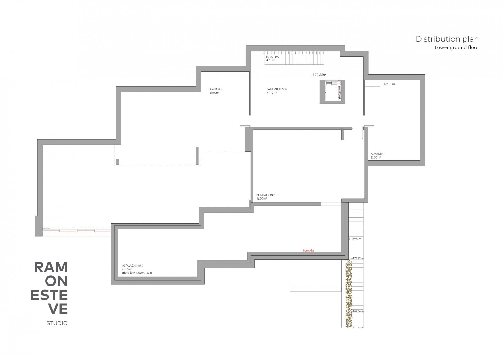
Suddivisione intelligente degli spazi: pianta ben studiata con zonizzazione ottimale e utilizzo armonioso delle superfici

Suddivisione intelligente degli spazi: pianta architettonicamente studiata con una suddivisione perfetta e piscina integrata

Suddivisione intelligente degli spazi: pianta abitativa ben pensata con zonizzazione ottimale e area piscina integrata

Rendimento marino da sogno: immobili con vista panoramica sul mare e posizione diretta sulla spiaggia!

Nessun integrazione nel testo!Passeggiata panoramica sul mare esclusiva con vista sul porto - la vostra porta verso lo stile di vita mediterraneo!

Oasi urbana mediterranea: passeggiata di palme soleggiata con architettura affascinante e progettazione verde urbana

Paradiso mediterraneo da sogno: baia incontaminata con acque cristalline e paesaggi montani pittoreschi

Immobili storiche con vista mare: fortezza costiera ristrutturata con panorama unico e collegamento stradale diretto



















Prezzo:
2.264.000 €
Superficie ca.:
400 mq.
Terreno ca.:
1.070 mq.
Vani :
8
AVVISO IMPORTANTE – IMMOBILE IN FASE DI COSTRUZIONE
Questa villa è attualmente in costruzione. Ora è il momento perfetto per personalizzare la pianta, le finiture e il design secondo le tue preferenze personali.
Contattaci pure per condividere i tuoi desideri individuali.
────────────────────────────
Scopri un’opportunità straordinaria di acquistare una casa nel cuore di Moraira – una delle località più ambite della Costa Blanca.…
Questo gioiello architettonico si trova nel centro della provincia di Alicante e si distingue per la sua atmosfera mediterranea e paesaggi mozzafiato.
Spazi ampi & progettazione flessibile
Con una superficie edificata di circa 903 m², l’immobile offre una base ideale per una casa personalizzata. Il terreno di 1.070 m² apre molte possibilità: da giardini spaziosi a terrazze ampie, fino a una piscina privata – perfetta per godersi serenamente le giornate di sole.
Posizione eccellente
Situato nel centro di Moraira, potrai usufruire di tutte le comodità a pochi passi: ristoranti eccellenti, negozi caratteristici e il pittoresco porto turistico sono nelle immediate vicinanze. Spiagge e calette con acque cristalline invitano a nuotare, praticare sport acquatici o semplicemente rilassarsi al sole.
Investimento interessante
Sia come residenza privata sia come progetto commerciale, questa proprietà offre un elevato potenziale di rivalutazione. La domanda crescente di immobili in questa zona la rende un investimento sicuro e redditizio.
Spazio per la tua visione
Realizza la casa dei tuoi sogni secondo i tuoi desideri. Spazi ampi e luminosi possono essere adattati perfettamente al tuo stile di vita. Grazie al clima mite della Costa Blanca, puoi progettare ogni angolo per vivere all’aperto – da terrazze eleganti a giardini mediterranei.
Conclusione
Questa proprietà combina posizione privilegiata, spazi generosi e infinite possibilità di personalizzazione. Non perdere l’occasione di diventare proprietario di questa straordinaria residenza e realizzare la tua visione personale sulla Costa Blanca.
Tipo di casa: Villa
Con obbligo di provvigione: No
Numero delle camere da letto: 5
Numero dei bagni: 5
Terrazza: 1
Giardino: Si
Piscina: Si
Cantina/taverna: Ripostiglio
Area condizionata: Si
Numero delle aree adibite a parcheggio: 1 x Posto auto scoperto; 1 x Garage
Anno di costruzione: 2026
Fase di costruzione: Casa in costruzione
Potrebbe anche piacerti

Katzmann Immobilien GmbH
Signor Jörg Allmannsberger
Siemensstr.31a
50374 Erftstadt
Telefono: +49 2235 9900334
ES-03724 Moraira
Alicante
Comunidad Valenciana






































































