Moraira:
Ref.n°.: JA-PN-4251

Villa di design di lusso con terrazza a sfioro con piscina panoramica e ringhiera in vetro - il vostro rifugio esclusivo con fascino mediterraneo

Villa di design di lusso con vista mare panoramica e piscina a sfioro privata in posizione privilegiata

Highlight architettonico moderno: villa di design con piscina a sfioro e connessione senza soluzione di continuità tra interno ed esterno

Villa nuova esclusiva con vista panoramica sul mare in posizione privilegiata a Moraira - Capolavoro architettonico con terrazza sul tetto e piscina!

Terrazza piscina di lusso con vista mare - Architettura moderna incontra l'eleganza tropicale

Oasi di lusso con eleganza architettonica - Villa moderna con paesaggio tropicale e area acquatica esclusiva

Terrazza esclusiva con vista mare: architettura moderna con una vista panoramica mozzafiato!

Villa esclusiva per architetti in fase di costruzione - Suddivisione moderna degli spazi con architettura mozzafiato delle terrazze!

Villa nuova esclusiva con architettura mozzafiato e vista panoramica - struttura grezza con potenziale in posizione privilegiata!

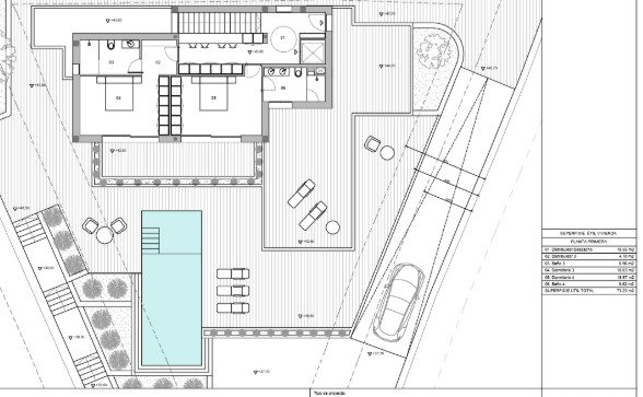
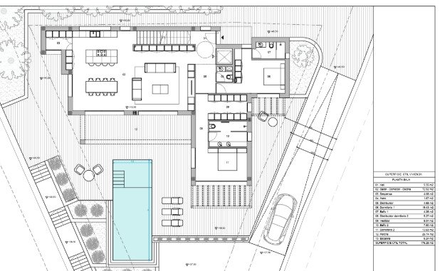
Suddivisione intelligente degli spazi: pianta architettonicamente studiata con utilizzo ottimale delle superfici e interessanti differenze di livello!

Villa esclusiva con terrazze panoramiche - struttura grezza con vista ampia in posizione privilegiata!

Suddivisione intelligente degli spazi: pianta architettonicamente ben studiata con utilizzo ottimale delle superfici e zonizzazione accurata

Suddivisione intelligente degli spazi: pianta architettonicamente ben studiata con utilizzo ottimale delle superfici e zonizzazione accurata

Suddivisione intelligente degli spazi: pianta architettonicamente ben studiata con zonizzazione ottimale e utilizzo armonioso delle superfici

Suddivisione intelligente degli spazi: pianta abitativa ben studiata con zonizzazione ottimale e ampio complesso piscina

Suddivisione intelligente degli spazi: comfort e funzionalità perfettamente integrati - ampio terreno con garage integrato e area piscina privata!

Suddivisione intelligente degli spazi: comfort e funzionalità perfettamente integrati - ampio terreno con garage integrato e area piscina privata!

Villa esclusiva con architetti e terrazze panoramiche spettacolari - struttura grezza con vista ampia!

Terreni esclusivi con vista mare e tramonto spettacolare - il vostro progetto immobiliare da sogno vi aspetta!

Baia di sabbia incredibilmente morbida con acque cristalline turchesi e uno scenario montano pittoresco - il vostro nuovo paradiso vacanze!

Posizione esclusiva fronte mare: splendida proprietà nel Mediterraneo con spiaggia e paesaggio montano!

Terreno edificabile sul mare con vista storica - Unico investimento direttamente sulla costa!

Esclusiva residenza sul porto con vista panoramica sul Mar Mediterraneo - la vostra dimora da sogno tra scogli e acque azzurre!

Vista mare da sogno: appartamento esclusivo al piano terra con passeggiata sul mare e giardino mediterraneo

Esclusiva residenza sul porto con vista panoramica - la vostra dimora da sogno tra il Mediterraneo e lo scenario montano!

























Prezzo:
1.850.000 €
Superficie ca.:
390 mq.
Terreno ca.:
809 mq.
Vani :
7
- laundry
- outdoor shower
- doble glazing
- security door
- fenced plot
Tipo di casa: Villa
Con obbligo di provvigione: No
Numero delle camere da letto: 4
Numero dei bagni: 4
Terrazza: 1
Bagno per gli ospiti: Si
Giardino: Si
Camino: Si
Piscina: Si
Numero delle aree adibite a parcheggio: 1 x Posto auto scoperto; 1 x Garage
Anno di costruzione: 2025
Fase di costruzione: Casa in costruzione
Stato: Nuovo
Potrebbe anche piacerti

Katzmann Immobilien GmbH
Signor Jörg Allmannsberger
Siemensstr.31a
50374 Erftstadt
Telefono: +49 2235 9900334
ES-03724 Moraira
Alicante
Comunidad Valenciana































































