Benkovac:
Ref.n°.: KJA-000015














































Prezzo:
179.000 €
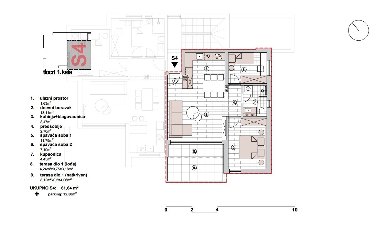
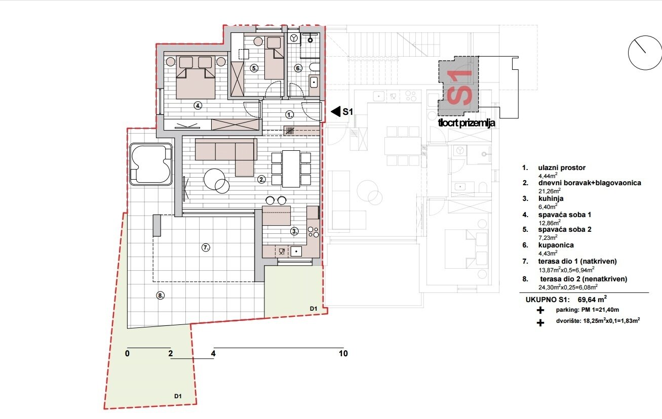
Superficie ca.:
146 mq.
Terreno ca.:
750 mq.
Vani :
5
Tipo di casa: Casa indipendente
Piani: 2
Cucina: Cucina componibile
Bagno: Doccia
Numero delle camere da letto: 2
Numero dei bagni: 1
Dintorni: Possibilità di acquisto, Scuola elementare, zona tranquilla, Parco giochi
Qualità dell´arredamento: Semplice
Anno di costruzione: 2007
Stato: Da ristrutturare
Upon signing a purchase contract, a placement / termination fee of 5.8% including 19% VAT on the purchase price by the buyer will be charged.
The information provided by us is based on information provided by the seller or the seller. For the correctness and completeness of the information, no responsibility or liability can be accepted. An intermediate sale and mistakes are reserved.
We refer to our terms and conditions. Through further use our services do you explain your knowledge and consent.
Potrebbe anche piacerti
Neubau-Wohnung mit Panoramablick - Primošten
Renovierungsobjekt in Strandnähe - Brodarica

Katzmann Immobilien GmbH
Signor Jörg Allmannsberger
Siemensstr.31a
50374 Erftstadt
Telefono: +49 2235 9900334
HR-23420 Benkovac































































