Altea:
Elegante villa met adembenemend uitzicht en luxe wooncomfort
Object-Nr.: JA-PN-5000

Architectuurhoogtepunt: Moderne designvilla met dynamische overhangen en een ruime zwembadomgeving

Architectuurspecial: Modern designhuis met slimme indeling en ruime glazen gevel

Lichtdoorlatende woon-eetkamer met panoramisch natuurlandschap - Moderne architectuur om je goed te voelen!

Lichtdoorlatende luxe kleedkamer met slimme rekarchitectuur en indirecte LED-verlichting

Architectuurschitter: Moderne designvilla met zwevend bovenverdieping en panoramische glazen gevels

Architectuurhoogtepunt: Moderne designvilla met transparante glazen gevels en luchtige overkappingen - uw nieuwe thuis tussen licht en landschap!

Architectuurschitterpunt: Moderne designvilla met panoramische ramen tot op de vloer en een elegante zwembadterras

Architectuur van precisie: Moderne kubatuur met slimme lichtinrichting en harmonieuze natuurintegratie

Lichtdoorstromende slaapkamer met innovatieve plafondverlichting en geïntegreerde opbergruimte - Moderne wellnessoase met doordachte lichtarchitectuur

Lichtdoorlatende slaapkamer met slimme lichtarchitectuur en panoramisch uitzicht op de natuur

Luxueuze designerkast met slimme indeling en geïntegreerde verlichting - maximale opslagruimte-efficiëntie gegarandeerd!

Loftküche met panoramische beglazing: koken tussen binnen en buiten

Lichtdoorlatende woon-eetkamer met panoramische glazen gevel en elegant design - uw nieuwe thuis met uitzicht!

Lichtdoorlatende woonruimte met naadloze terrasverbinding - Moderne architectuur op het hoogste niveau!

Lichtdoorlatende woon-eetkamer met elegante architectuur en naadloze overgang naar de natuur

Lichtdoorlatende eetruimte met panoramische beglazing - Moderne architectuur ontmoet natuurlijk landschap

Geen aanvullingen in de tekst!Exclusieve designerhallen: Lichtovergoten ontvangstzone met elegante sideboard-oplossing en artistieke wanddecoratie

Ontwerpersgang met accent: Moderne lichtinstallatie en elegante wanddecoratie

Lichtdoorlatende entree met designlamp en elegant dressoir - uw stijlvolle ontvangstmoment!



















Prijs:
1.250.000 €
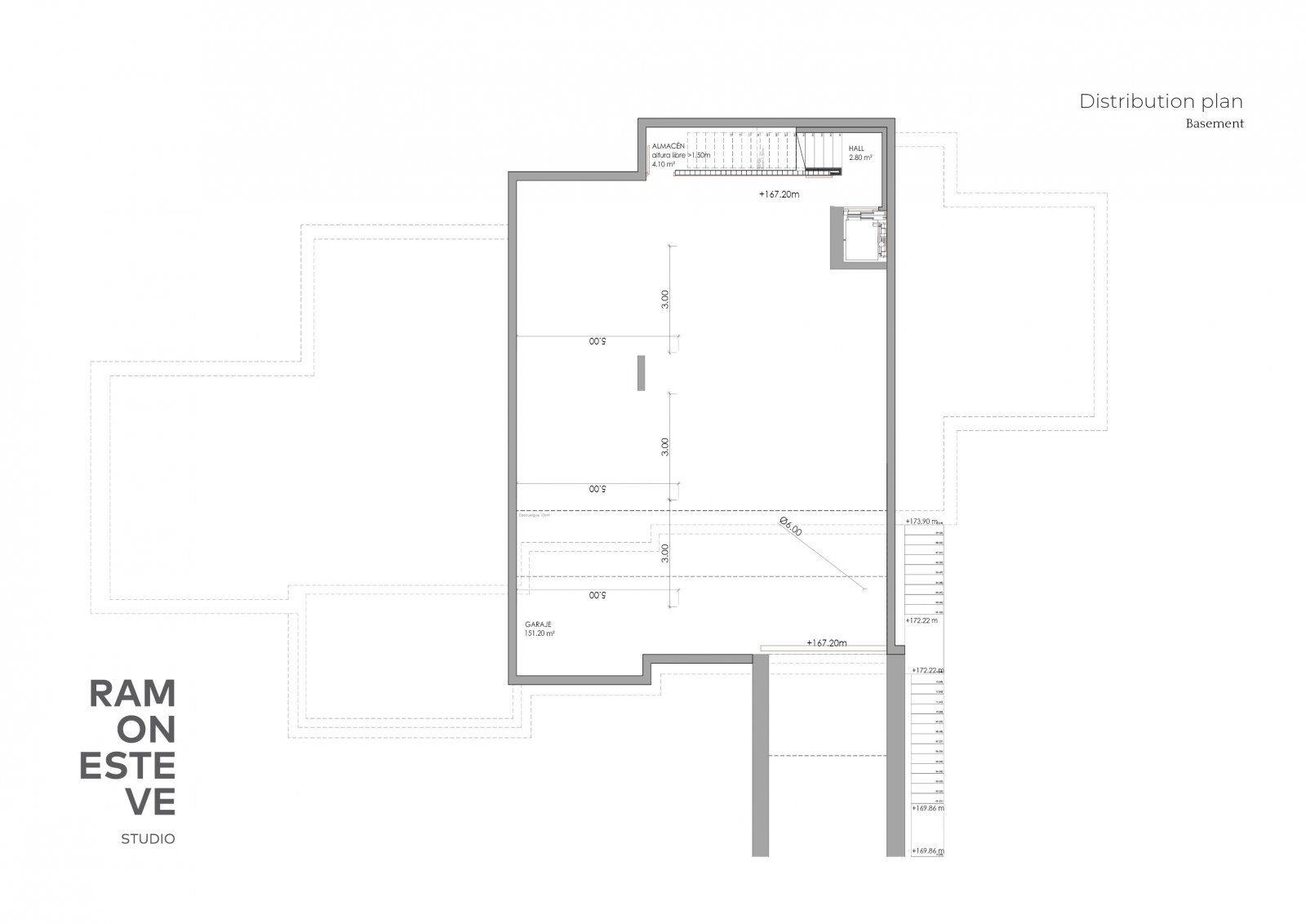
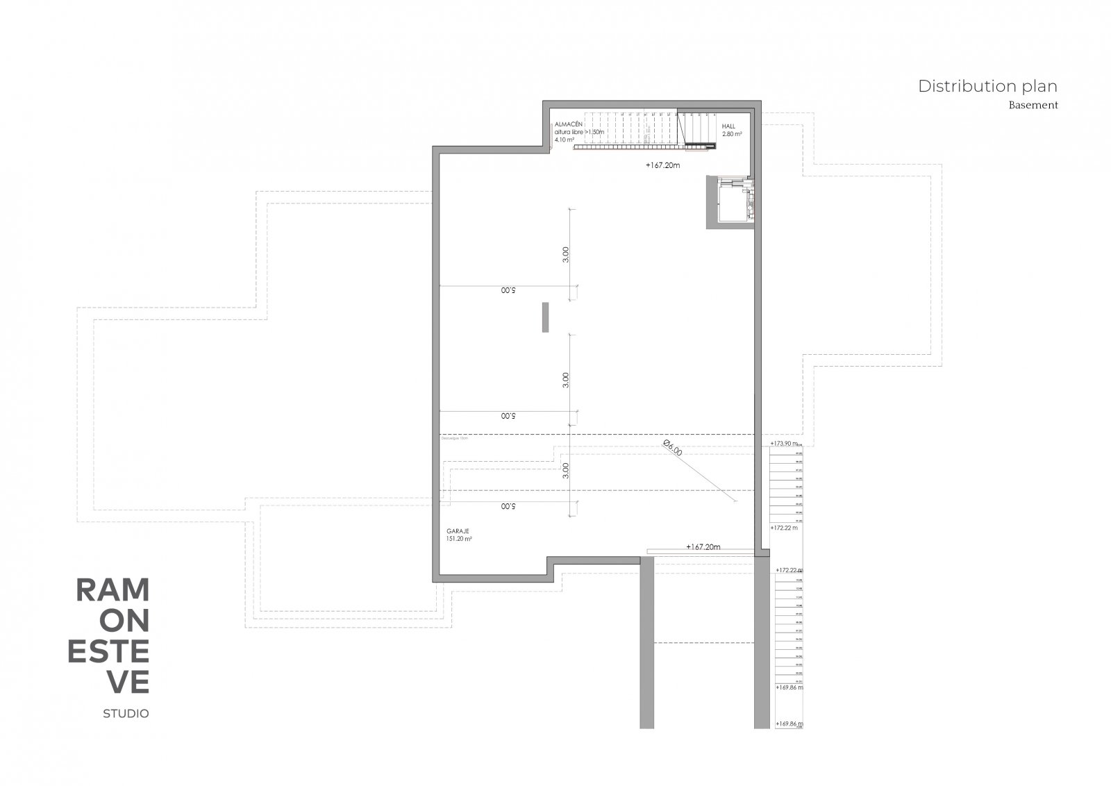
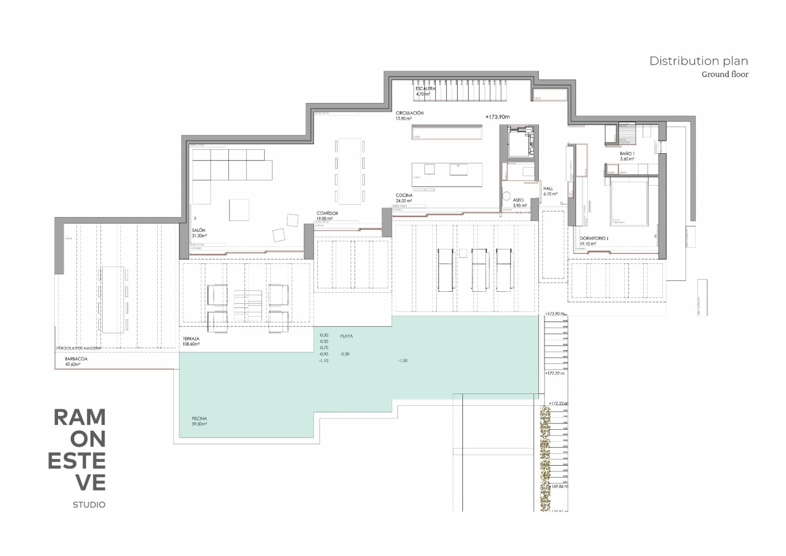
Woonoppervlak ca.:
375 m2.
Grondstuk:
804 m2.
Aantal kamers:
5
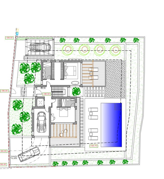
Exclusieve design-villa in Altea (Santa Clara) met panoramisch uitzicht op zee en bergen
– Woonoppervlakte ca. 375 m² op een perceel van 804 m²
– Ruime woon-/eetkamer, keuken van 60 m² met toegang tot het zwembadterras
– 3 slaapkamers, elk met eigen badkamer – hoofdsuite ca. 55 m² met inloopkast
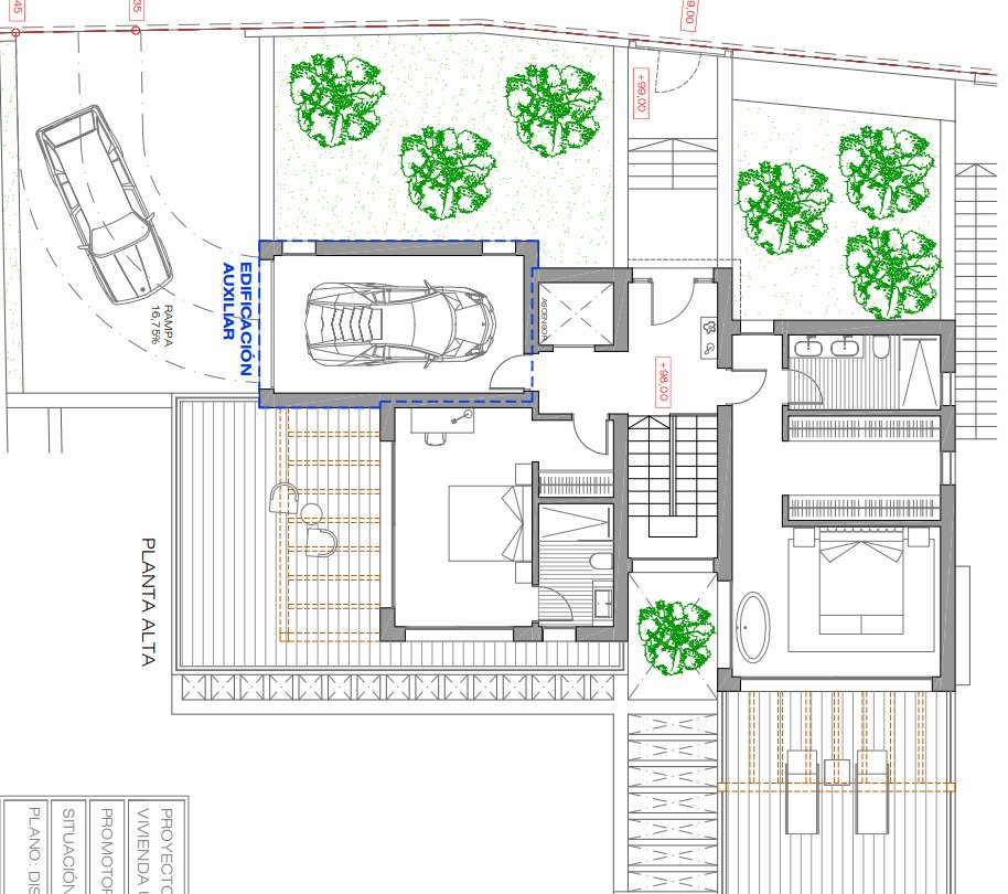
– Hoge inkomhal, gastentoilet
– Tuin, parkeerplaats, garage, extra ruimte voor fitness of gastenverblijf
– Hoogwaardige afwerking: vloerverwarming, airconditioning, inbouwkasten, 21 m² inloopkast, automatische beregening
Welkom in deze indrukwekkende villa die zich onderscheidt door haar unieke ontwerp en toplocatie in de gewilde wijk Santa Clara in Altea. Hier geniet u niet alleen van een adembenemend uitzicht op het sprankelende water en de majestueuze bergen, maar ook van een gevoel van rust en privacy dat tegenwoordig zo waardevol is. Met een royale woonoppervlakte van 375 m² biedt dit droomhuis voldoende ruimte voor uw gezin en gasten.
De villa beschikt over in totaal vijf kamers, waaronder drie uitnodigende slaapkamers en drie luxe badkamers die u het hoogste comfort bieden. Een gastentoilet zorgt voor extra gemak. De twee balkons bieden de perfecte gelegenheid om te genieten van het adembenemende uitzicht, terwijl de ruime bergruimte extra opbergmogelijkheden biedt. Breng ontspannen dagen door aan uw eigen zwembad en geniet van de klimaatgeregelde sfeer die dit huis tot een ware oase maakt.
Woningtype: Villa
Op provisiebasis: nee
Aantal slaapkamers: 3
Aantal badkamers: 3
Balkon: 2
Terras: 1
Gastentoilet: ja
Tuin: ja
Zwembad: ja
Kelder: Bergruimte
Airco: ja
Aantal parkeerplaatsen: 1 x Parkeerplaats buiten
Bouwjaar: 2022
Misschien vind je dit ook leuk

Katzmann Immobilien GmbH
Mijnheer Jörg Allmannsberger
Siemensstr.31a
50374 Erftstadt
Telefoon: +49 2235 9900334
DE-03590 Altea



















































































