Vodice:
Object-Nr.: LITO288997


























Prijs:
399.000 €
Woonoppervlak ca.:
96 m2.
Aantal kamers:
3
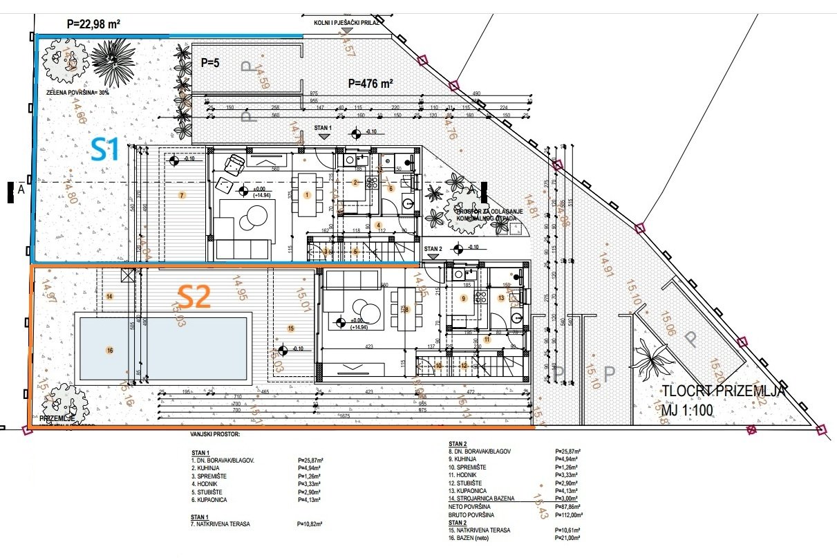
Indeling
Meeresnähe: Strandnähe. Klimaanlage vorhanden. Ausstattung: parking, near beach.
Verdere gegevens
Woningtype: Eengezinswoning
Aantal slaapkamers: 2
Aantal badkamers: 1
Airco: ja
Omgeving: In de buurt van het strand
Kwaliteit van de uitrusting: Normaal
Toestand: Goed onderhouden
Misschien vind je dit ook leuk
Pirovac
Obj. Nr. LITO276722
276722 - Villa in Pirovac
320.000 €
4
Vodice
Obj. Nr. LITO274371
274371 - Villa in Vodice
690.000 €
4
Vodice
Obj. Nr. LITO303244
303244 - Villa in Vodice
495.000 €
4
Uw contactpersoon

Katzmann Immobilien GmbH
Mijnheer Jörg Allmannsberger
Siemensstr.31a
50374 Erftstadt
Telefoon: +49 160 95100298
Object-Adres
HR-22000 Vodice























































