Vodice:
Object-Nr.: LITO277702
























Prijs:
225.000 €
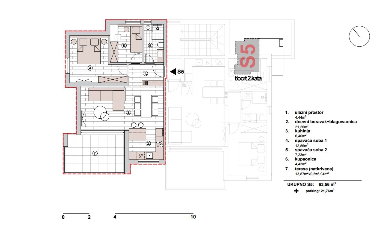
Woonoppervlak ca.:
81 m2.
Aantal kamers:
4
Indeling
Meeresnähe: Strandnähe. Klimaanlage vorhanden. Ausstattung: parking, near beach.
Verdere gegevens
Woningtype: Etagewoning
Aantal slaapkamers: 3
Aantal badkamers: 1
Airco: ja
Omgeving: In de buurt van het strand
Kwaliteit van de uitrusting: Normaal
Toestand: Nieuw te betrekken
Misschien vind je dit ook leuk
Vodice
Obj. Nr. LITO284595
284595 - Wohnung in Vodice
250.000 €
3
Primošten
Obj. Nr. LITO274956
274956 - Wohnung in Primošten
337.000 €
3
Murter
Obj. Nr. LITO273672
273672 - Wohnung in Murter
325.000 €
3
Uw contactpersoon

Katzmann Immobilien GmbH
Mijnheer Jörg Allmannsberger
Siemensstr.31a
50374 Erftstadt
Telefoon: +49 160 95100298
Object-Adres
HR-22000 Vodice










































