Calpe:
Idylliczne życie w stylowej willi z nutą Ibizy
numeru objektu: JA-PN-3138

Nowoczesny domek przy basenie z bezszwowym koncepcją mieszkania wewnątrz i na zewnątrz – architektura pełna światła i eleganckich akcentów drewnianych

Nowoczesny dom wakacyjny z basenem – architektura łącząca naturę i luksus

Przestronny, słoneczny salon z jadalnią z płynnie połączonym tarasem – nowoczesna harmonia wnętrza na najwyższym poziomie!

Przestronne, słoneczne wnętrze z inteligentną integracją półek i wysokiej jakości okładziną drewnianą

Nowoczesny klejnot architektury: kubistyczna elegancja z śródziemnomorskim urokiem i zachęcającym drewnianym wejściem

Ekskluzywna sypialnia z na wymiar wbudowaną drewnianą garderobą – maksymalna przestrzeń do przechowywania spotyka się z ponadczasowym designem!

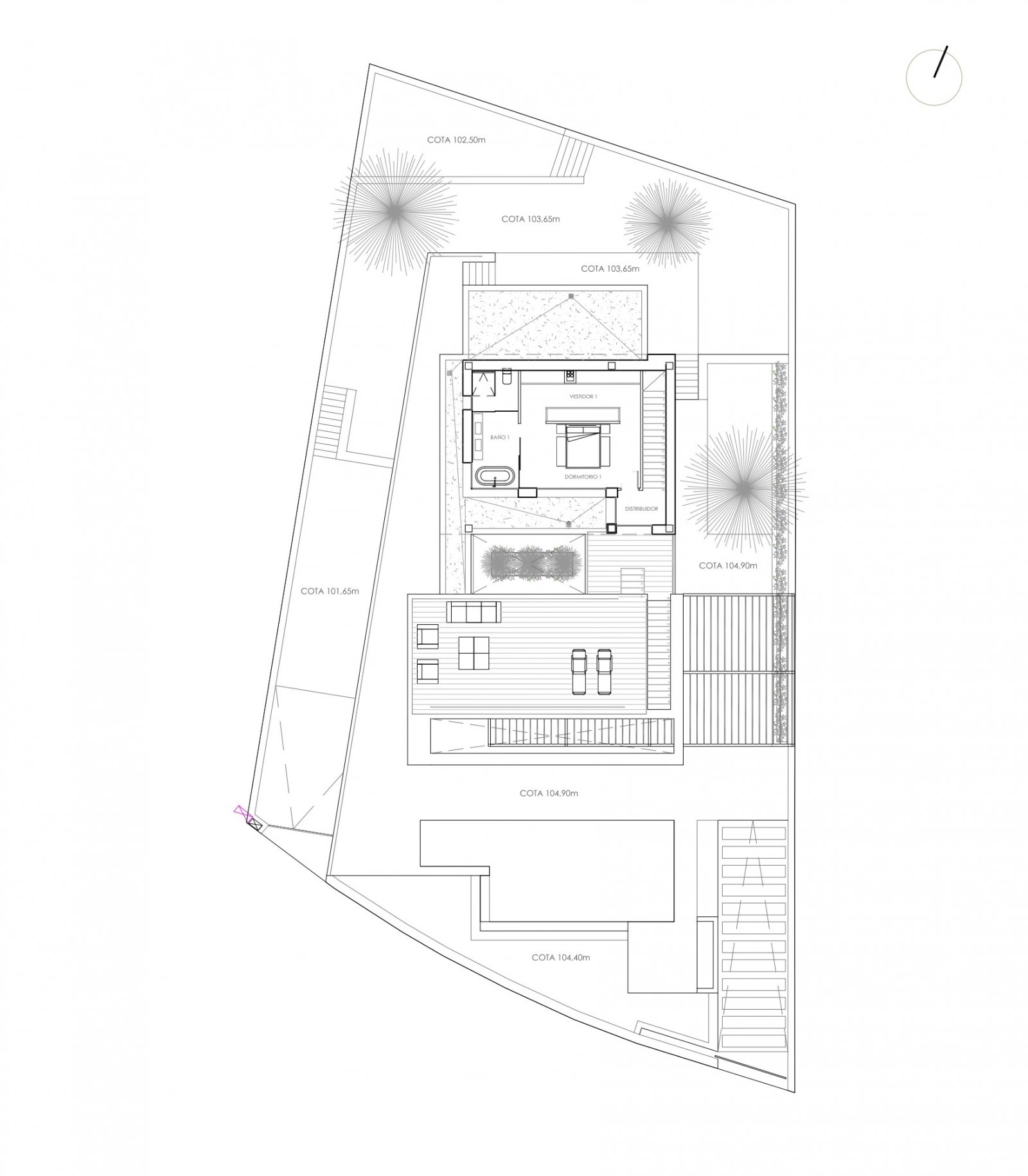
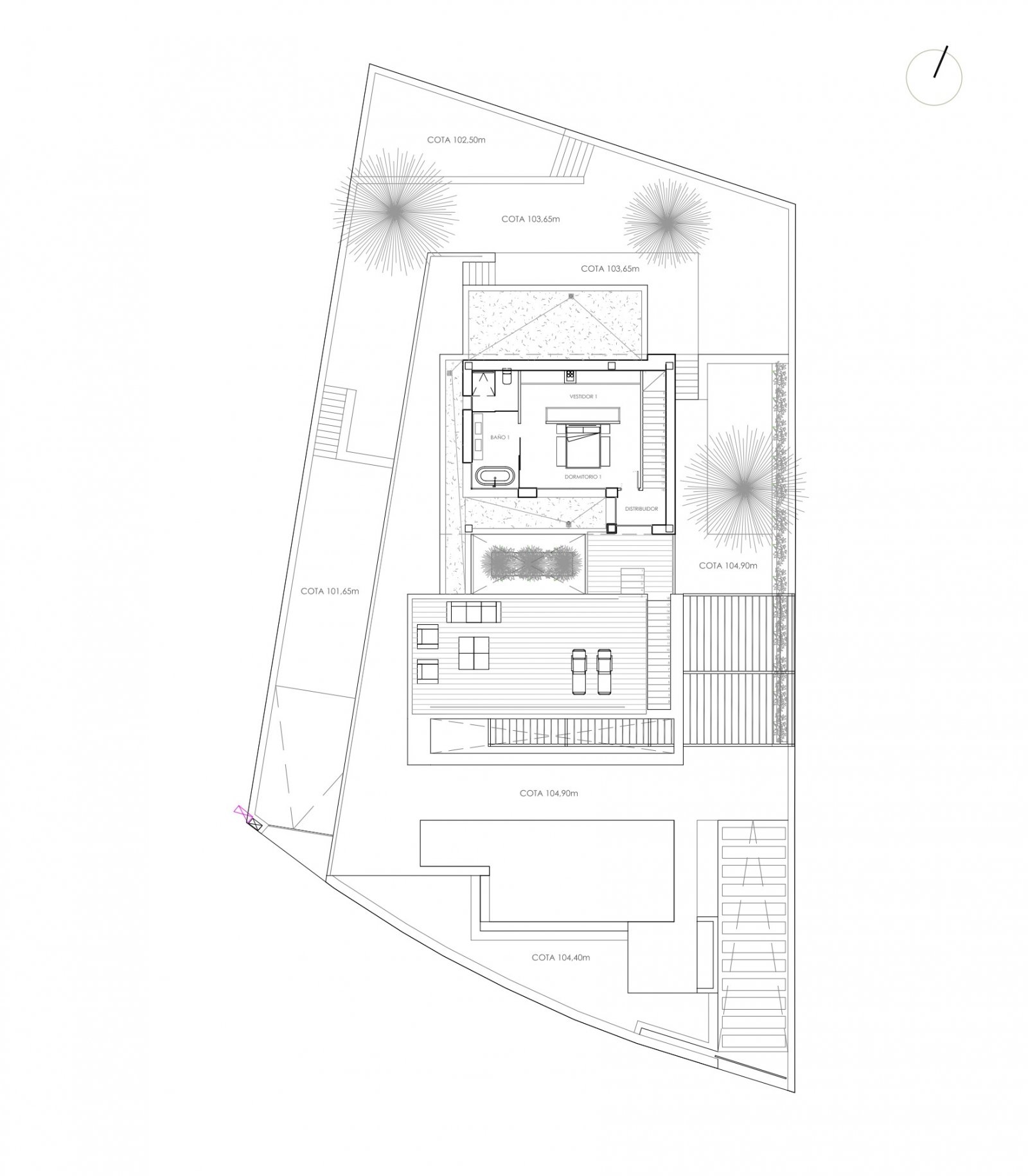
Przemyślany układ pomieszczeń: inteligentny plan mieszkania z optymalnym podziałem na strefy i harmonijnym wykorzystaniem powierzchni

Nowoczesny klejnot architektury: willa z bezszwowym konceptem indoor-outdoor i prywatnym basenem

Ekskluzywne nadmorskie zagospodarowanie z widokiem na traumę - bezpośredni dostęp do krystalicznie czystej wody!

Ekskluzywna lokalizacja nad morzem: działka budowlana z zapierającym dech w piersiach panoramicznym widokiem i bezpośrednim dostępem do wody!

Ekskluzywne domy przy plaży z zapierającym dech w piersiach widokiem na wybrzeże – Twoje wymarzone miejsce tuż przy Costa Brava!

Ekskluzywna lokalizacja nad morzem z bezpośrednim dostępem do plaży i kamienną klatką schodową – Twoje prywatne nadmorskie raj!












Cena:
890.000 €
Powierzchnia mieszkalna okolo:
139 m2
Dzialka okolo:
800 m2
Liczba izb:
5
Ważna informacja – nieruchomość w fazie budowy
Ta willa jest obecnie w budowie. To idealny moment, aby dostosować układ, wystrój i design do swoich indywidualnych potrzeb.
Zapraszamy do kontaktu w celu omówienia swoich życzeń i wymagań.
Odkryj luksusowe odczucie mieszkania w tej uroczej willi w stylu ibiza, która na jednym poziomie oferuje harmonijny dom. Otwarte rozmieszczenie pomieszczeń tworzy przytulną atmosferę, w której od razu poczujesz się jak w domu. Z pięcioma pokojami, w tym trzema komfortowymi sypialniami, ta nieruchomość jest idealna dla rodzin lub par poszukujących przestrzeni i prywatności. Powierzchnia użytkowa 140 m² oraz rozległa działka o powierzchni 800 m² dają pełną swobodę aranżacji i relaksu.
Ciesz się ciepłymi dniami przy własnym basenie, który stanowi doskonałe miejsce na orzeźwienie i relaks. Ta willa łączy nowoczesny design z urokliwym charakterem, tworząc oazę spokoju i dobrego samopoczucia.
typ domu: Willa
Obowiazek uiszczenia prowizji: nie
ilosc sypialni: 3
ilosc lazienek: 2
Taras: 1
Toaleta goscinna: tak
basen: tak
klimatyzacja: tak
Dostosowany jako dom wakacyjny: tak
ilosc miejsc parkingowych: 1 x Miejsce postojowe na zewnatrz; 1 x Garaz
Rok budowy: 2025
Faza budowy: Dom w budowie
Stan: pierwsze wprowadzenie
Może Ci się też spodobać

Katzmann Immobilien GmbH
pan Jörg Allmannsberger
Siemensstr.31a
50374 Erftstadt
telefon: +49 2235 9900334
ES-03710 Calpe
Alicante
Comunidad Valenciana








































































