Primošten:
numeru objektu: KJA-000017




















































Cena:
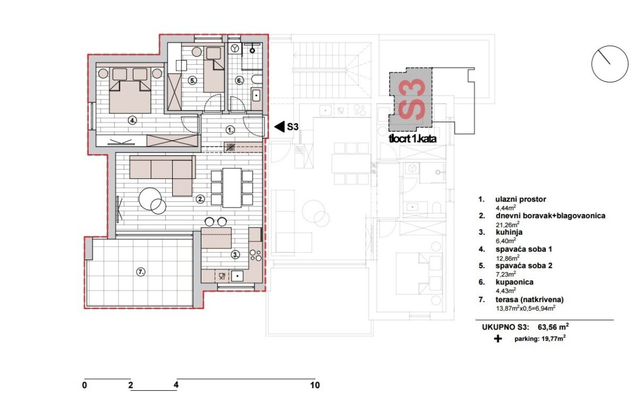
260.000 €
Powierzchnia mieszkalna okolo:
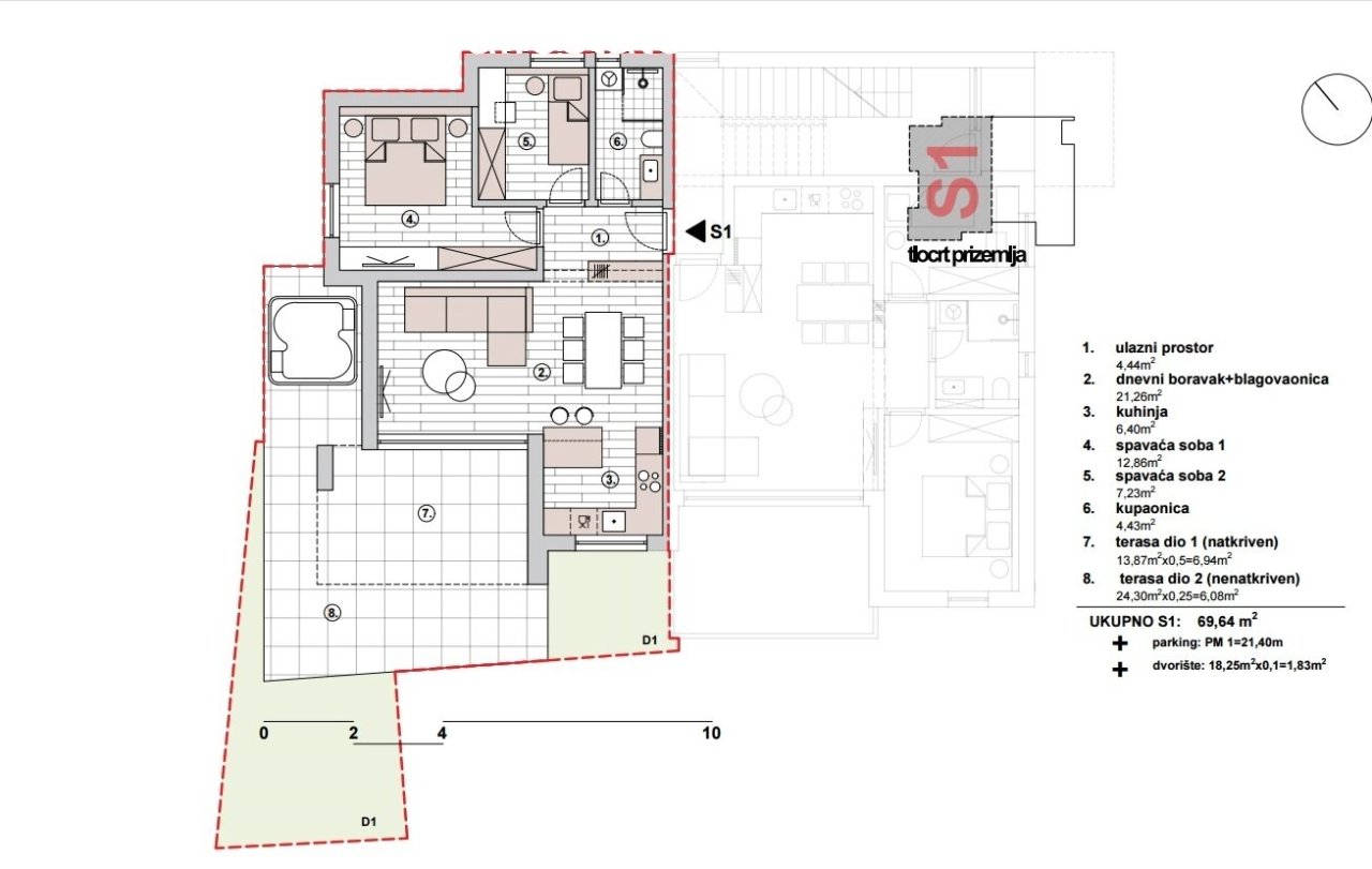
67 m2
Liczba izb:
3
Dalsze dane
Typ mieszkania: Wysoki parter
Powierzchnia uzytkowa okolo: 91 m2
Kuchnia: kuchnia zbudowana
Lazienka: Prysznic, Pisuar
ilosc sypialni: 2
ilosc lazienek: 1
Taras: 1
klimatyzacja: tak
okolica: spokojna okolica, bliskość plaży
ilosc miejsc parkingowych: 1 x Garaz
Widok: Z widokiem na morze
Jakosc wyposazenia: Wyszukane
Rok budowy: 2026
Stan: pierwsze wprowadzenie
Klasa energetyczna: A
Może Ci się też spodobać
Srima
Objekt nr KJA-00008
Voll möblierte Wohnung in Strandnähe - Srima, Vodice
Cena dla zainteresowanych
3
Osoba odpowiedzialna za kontakt

Katzmann Immobilien GmbH
pan Jörg Allmannsberger
Siemensstr.31a
50374 Erftstadt
telefon: +49 2235 9900334
Objekt-Adres
HR-22202 Primošten
















































































