Moraira:
Luxuriöse Villa mit traumhaftem Meerblick in Moraira
Objekt-Nr.: JA-PN-1383


























































































Preis:
1.450.000 €
Wohnfläche ca.:
390 m²
Grundstück ca.:
1.117 m²
Zimmeranzahl:
6
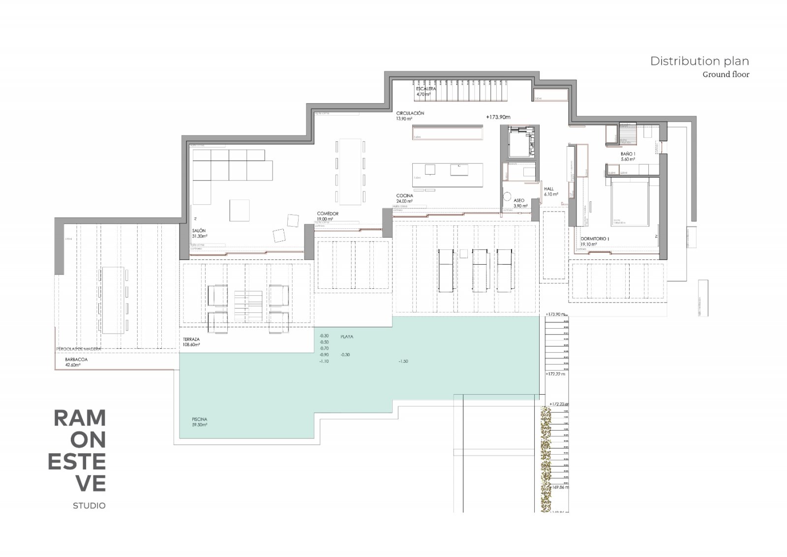
Diese beeindruckende Villa in Moraira verkörpert das perfekte Zusammenspiel aus Eleganz und Komfort. Mit einer großzügigen Wohnfläche von 390 m² und einem weitläufigen Grundstück von 1117 m² bietet dieses Zuhause ausreichend Platz für die ganze Familie. Die sechs lichtdurchfluteten Zimmer, darunter vier stilvolle Schlafzimmer, laden dazu ein, die Seele baumeln zu lassen und das Leben in vollen Zügen zu genießen. Die drei Badezimmer sind modern und großzügig gestaltet.
Der atemberaubende Meerblick von dieser Villa aus wird Sie jeden Tag aufs Neue begeistern. Hier können Sie den Sonnenuntergang über der Bucht von Moraira bewundern und die frische Meeresbrise genießen. Der großzügige Abstellraum sorgt dafür, dass alles seinen Platz hat, während der Kamin für eine wohlige Atmosphäre an kühlen Abenden sorgt. Diese Villa ist ein wahres Stück vom Paradies.
Haustyp: Villa
Provisionspflichtig: nein
Küche: Einbauküche
Bad: Dusche
Anzahl Schlafzimmer: 4
Anzahl Badezimmer: 3
Terrasse: 1
Einliegerwohnung: ja
Gäste-WC: ja
Garten: ja
Kamin: ja
Pool: ja
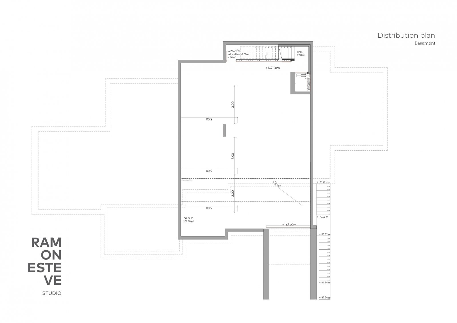
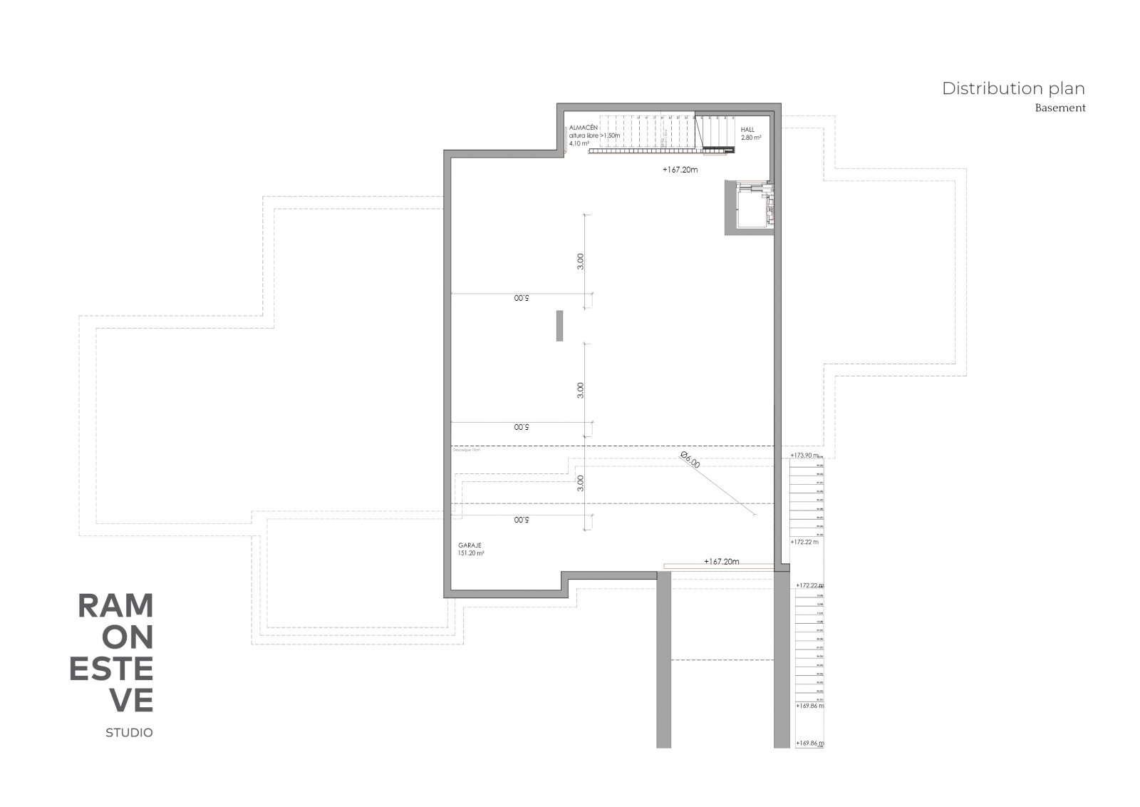
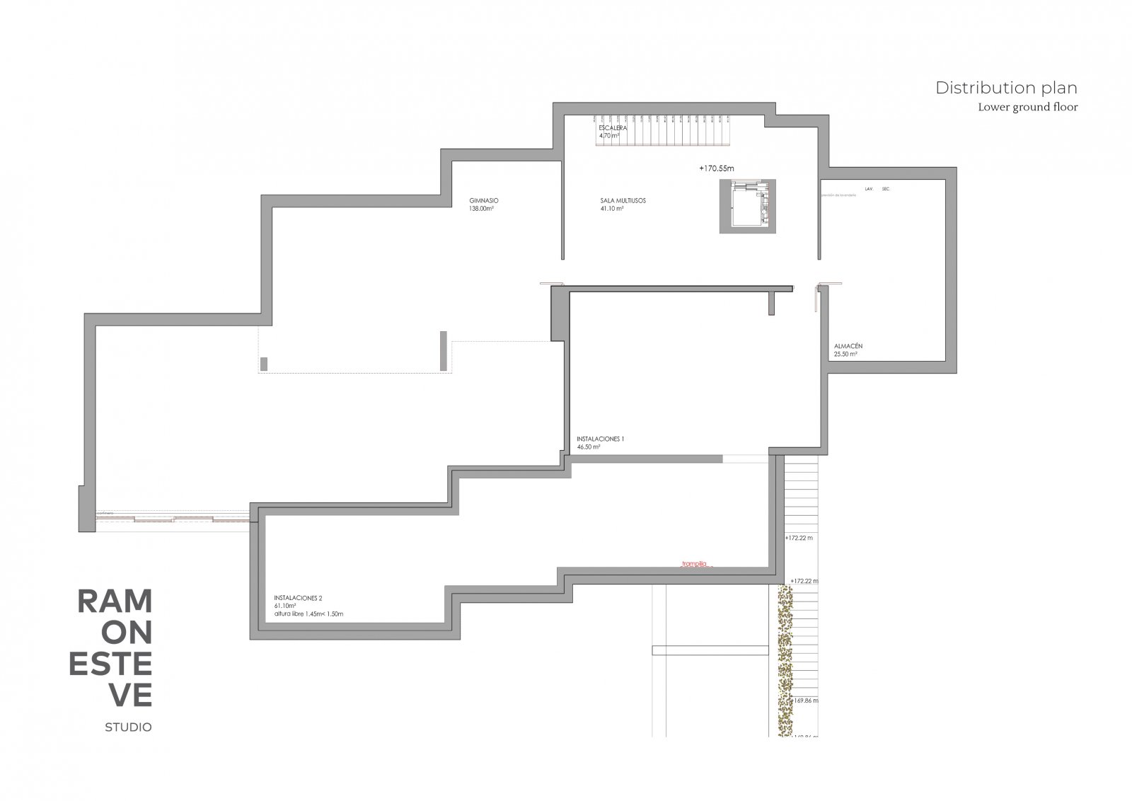
Keller: Abstellraum
Klimaanlage: ja
Alarmanlage: ja
Als Ferienhaus geeignet: ja
Anzahl der Parkflächen: 1 x Außenstellplatz; 1 x Garage; 2 x Parkhaus
Möbliert: ja
Ausblick: Meerblick
Baujahr: 2001
Bauphase: Haus fertig gestellt
Zustand: modernisiert
Das könnte Ihnen auch gefallen

Katzmann Immobilien GmbH
Herr Jörg Allmannsberger
Siemensstr.31a
50374 Erftstadt
Telefon: +49 2235 9900334
ES-03724 Moraira
Alicante
Comunidad Valenciana















































































