Moraira:
Luxurious villa with breathtaking sea views in Moraira
Property ID: JA-PN-1383


























































































Price:
1.450.000 €
Living space:
390 sq. m.
Plot size:
1.117 sq. m.
No. of rooms:
6
This impressive villa in Moraira embodies the perfect combination of elegance and comfort. With a spacious living area of 390 m² and a large plot of 1,117 m², this home offers plenty of space for the whole family. The six bright rooms, including four stylish bedrooms, invite you to unwind and enjoy life to the fullest. The three bathrooms are modern and generously designed.
The breathtaking sea view from this villa will delight you every day anew. Here, you can admire the sunset over Moraira Bay and enjoy the fresh sea breeze. The spacious storage room ensures everything has its place, while the fireplace creates a cozy atmosphere on cool evenings. This villa is truly a piece of paradise.
Type of house: Villa
Subject to commission: no
Kitchen: Fitted kitchen
Bathroom: Shower
Number of bedrooms: 4
Number of bathrooms: 3
Terrace: 1
Outhouse: yes
Guest WC: yes
Garden: yes
Fire Place: yes
Pool: yes
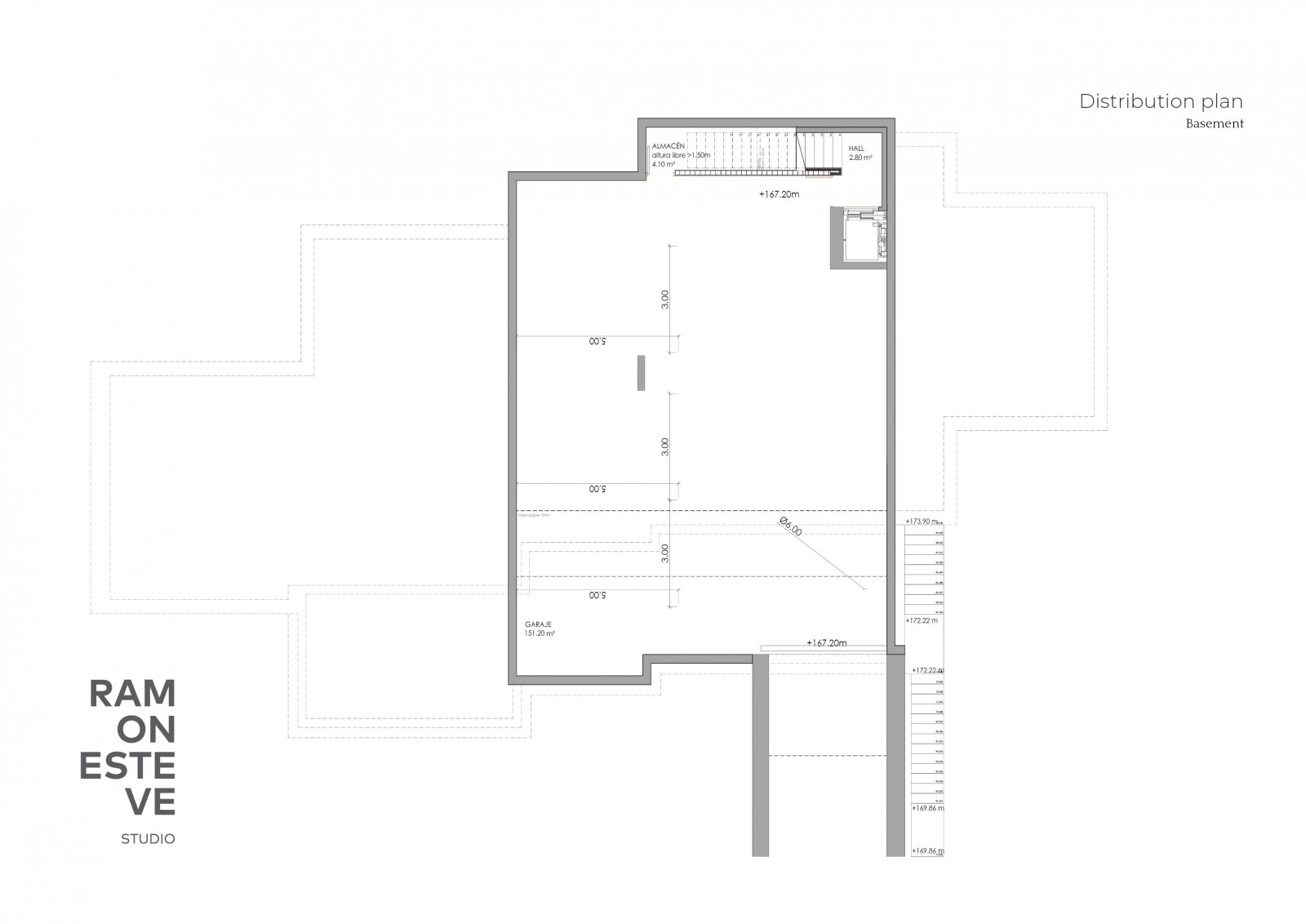
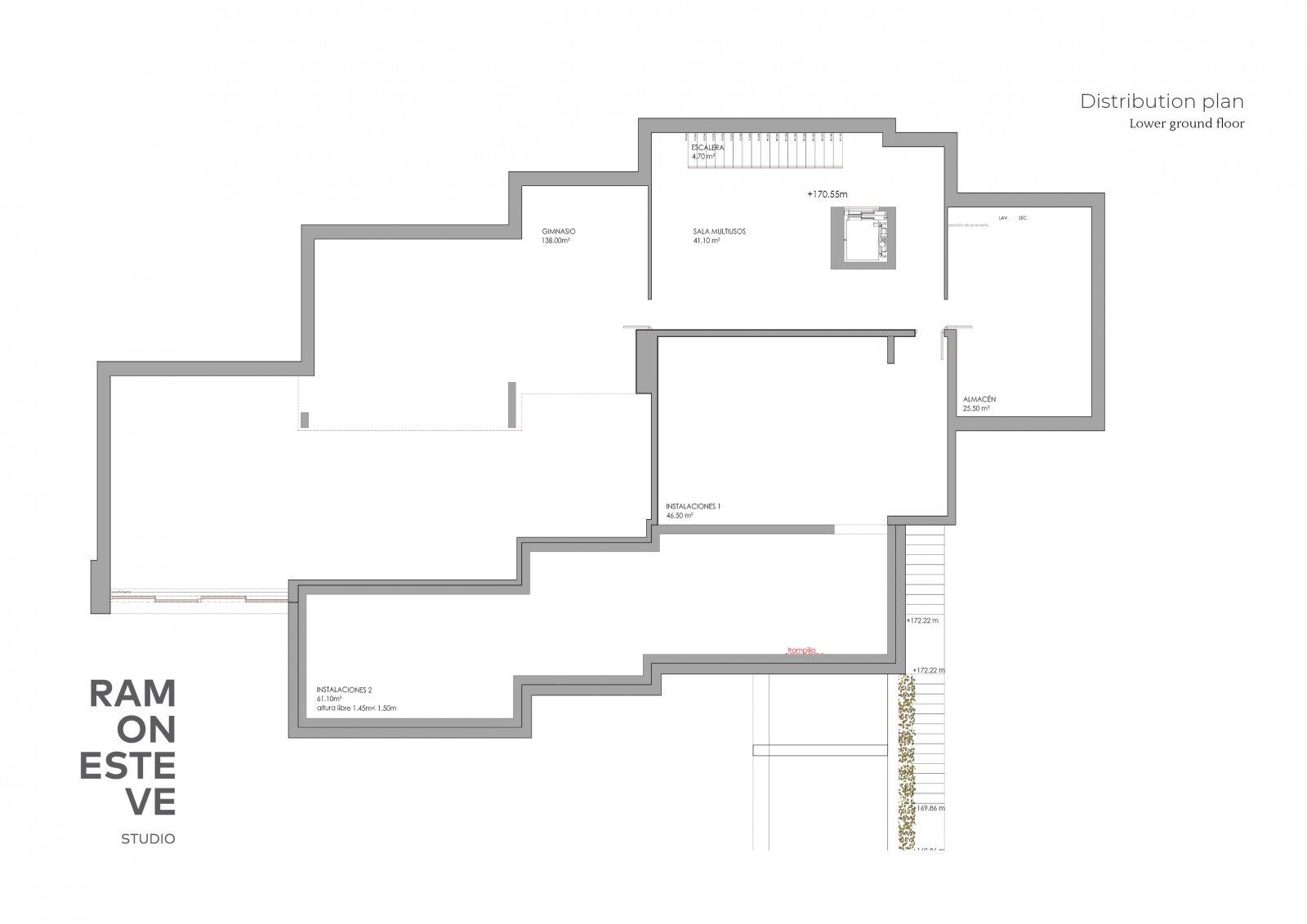
Basement: Storage room
Air condition: yes
Alarm system: yes
Suitable as holiday home: yes
Number of parking spaces: 1 x Outside parking space; 1 x Garage; 2 x Car park
Furnished: yes
Views: Sea View
Year of construction: 2001
Construction phase: House complete
Condition: Modernised
You might also like
Exclusive new build villas in Polop – Your custom dream home

Katzmann Immobilien GmbH
Mr. Jörg Allmannsberger
Siemensstr.31a
50374 Erftstadt
Phone: +49 2235 9900334
ES-03724 Moraira
Alicante
Comunidad Valenciana







































































