Tribunj:
Baugrundstück mit Baugenehmigungsverfahren - Tribunj
Objekt-Nr.: KJA-000014
























Grundstück ca.:
616 m²
Preis:
185.000 €
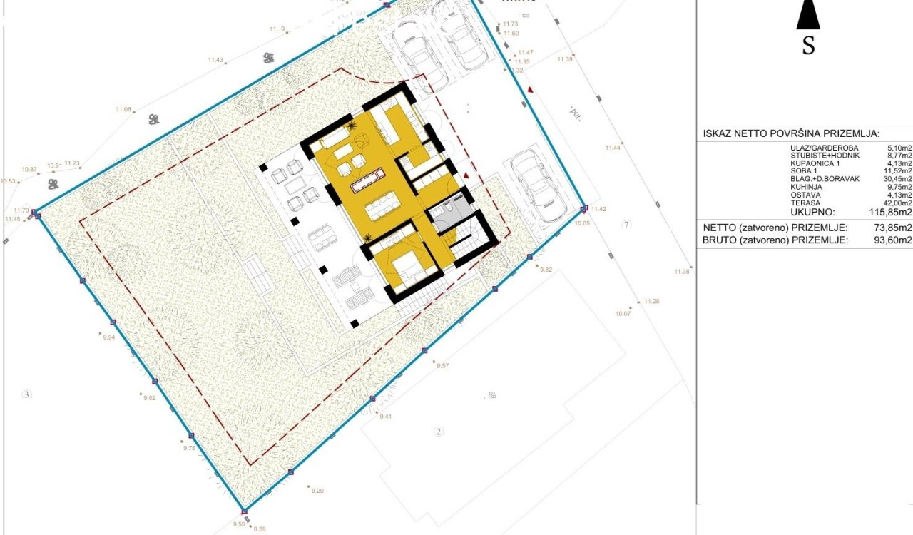
In der Bauzone M1-6b der Gemeinde Tribunj befindet sich dieses attraktive
Baugrundstück mit einer Fläche von 616 Quadratmetern. Das Grundstück besticht
durch seine regelmäßige rechteckige Form mit einer Breite von 17,50 Metern
entlang der Zufahrtsstraße und einer Länge von 29 Metern, was optimale
Voraussetzungen für eine effiziente Bebauung schafft.
Baugenehmigungsverfahren
Für das Grundstück befindet sich derzeit eine Baugenehmigung für ein
Einfamilienhaus mit einer Bruttogeschossfläche von 227,75 Quadratmetern im
Genehmigungsverfahren. Dies beschleunigt den Prozess bis zum möglichen
Baubeginn erheblich.
Grundstückseigenschaften
Das Grundstück ist größtenteils mit einer Betonmauer eingefasst, was bereits klare
Grundstücksgrenzen und zusätzliche Privatsphäre schafft. Die leichte Hanglage
bietet interessante architektonische Möglichkeiten und kann für eine optimale
Ausrichtung des Gebäudes genutzt werden. Die öffentliche Zufahrt gewährleistet…
eine problemlose Erreichbarkeit.
Erschließung und Infrastruktur
Die komplette öffentliche Infrastruktur befindet sich direkt am Grundstück, was
einen unkomplizierten Anschluss an alle notwendigen Versorgungsleitungen
ermöglicht. Dies umfasst Wasser, Strom und Kanalisation.
Nutzungsart: Wohnen
Erschliessung: erschlossen
Bebaubar nach: Bebauung nach Bebauungsplan
Empfohlene Nutzung: Einfamilienhaus, Mehrfamilienhaus
Die von uns gemachten Informationen beruhen auf Angaben des Verkäufers bzw. der Verkäuferin. Für die Richtigkeit und Vollständigkeit der Angaben kann keine Gewähr bzw. Haftung übernommen werden. Ein Zwischenverkauf und Irrtümer sind vorbehalten.
Wir weisen auf unsere Allgemeinen Geschäftsbedingungen hin. Durch weitere Inanspruchnahme unserer Leistungen erklären Sie die Kenntnis und Ihr Einverständnis.
Das könnte Ihnen auch gefallen

Katzmann Immobilien GmbH
Herr Jörg Allmannsberger
Siemensstr.31a
50374 Erftstadt
Telefon: +49 2235 9900334
HR-22212 Tribunj











































































