Vodice:
Freistehendes Erdgeschosshaus mit Garten - Vodice
Objekt-Nr.: KJA-00005




















































Preis:
Preis auf Anfrage
Wohnfläche ca.:
135 m²
Grundstück ca.:
665 m²
Zimmeranzahl:
8
In einer ruhigen Wohngegend von Vodice, nur 700 Meter vom Meer entfernt,
präsentiert sich dieses attraktive freistehende Erdgeschosshaus. Das im Jahr 2002
erbaute und 2022 zuletzt modernisierte Familienhaus bietet 135,17 Quadratmeter
Wohnfläche auf einem großzügigen Grundstück von 665 Quadratmetern. Die
Immobilie besticht durch ihre funktionale Raumaufteilung, die Nähe zu allen
städtischen Einrichtungen und dem Strand sowie den gepflegten Gartenbereich.
Raumaufteilung
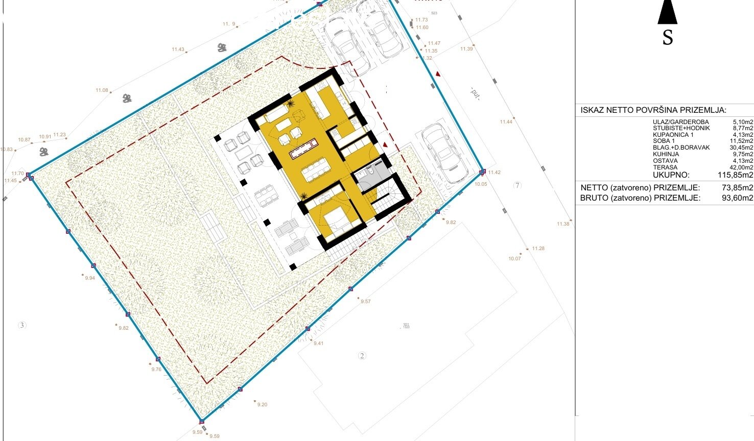
Das Haus überzeugt durch einen großzügigen und funktionalen Grundriss. Die
Wohnfläche umfasst drei komfortable Schlafzimmer, die ausreichend Platz für die
ganze Familie oder Gäste bieten. Zwei modern ausgestattete Badezimmer sorgen für
Komfort im Alltag. Ein praktischer Abstellraum bietet zusätzlichen Stauraum.
Das Herzstück des Hauses bildet das geräumige Wohnzimmer in Verbindung mit
der Küche und dem Essbereich, das zum gemeinsamen Familienleben einlädt.
Außenbereiche…
Ein besonderes Merkmal dieses Hauses sind die zwei großen Terrassen mit
insgesamt 40 Quadratmetern. Eine Terrasse befindet sich an der Südseite und
profitiert von optimaler Sonneneinstrahlung, während die zweite Terrasse an der
Nordseite des Hauses liegt und an heißen Sommertagen angenehmen Schatten
bietet. Diese Aufteilung ermöglicht eine flexible Nutzung der Außenbereiche zu
jeder Tageszeit.
Grundstück und Garten
Der gepflegte und umzäunte Garten von 665 Quadratmetern bietet Privatsphäre
und vielfältige Gestaltungsmöglichkeiten. Die großzügige Grundstücksfläche bietet
ausreichend Platz für den Bau eines Swimmingpools, einer Sommerküche oder
anderer Freizeiteinrichtungen nach den Wünschen der neuen Eigentümer.
Der gepflasterte Bereich im vorderen Teil des Grundstücks bietet Stellplätze für
mehrere Fahrzeuge und gewährleistet komfortables Parken direkt am Haus.
Stellplätze
Das Grundstück verfügt über drei Stellplätze im gepflasterten Bereich, die
bequemes Parken für die ganze Familie und Gäste ermöglichen.
Haustyp: Einfamilienhaus
Nutzfläche ca.: 140 m²
Küche: offen
Bad: Dusche, Fenster
Anzahl Schlafzimmer: 3
Anzahl Badezimmer: 2
Terrasse: 2
Klimaanlage: ja
Umgebung: ruhige Gegend, Strandnähe, Wohngegend
Anzahl der Parkflächen: 3 x Garage
Möbliert: ja
Letzte Modernisierung/ Sanierung: 2022
Qualität der Ausstattung: gehoben
Baujahr: 2002
Zustand: modernisiert
Die von uns gemachten Informationen beruhen auf Angaben des Verkäufers bzw. der Verkäuferin. Für die Richtigkeit und Vollständigkeit der Angaben kann keine Gewähr bzw. Haftung übernommen werden. Ein Zwischenverkauf und Irrtümer sind vorbehalten.
Wir weisen auf unsere Allgemeinen Geschäftsbedingungen hin. Durch weitere Inanspruchnahme unserer Leistungen erklären Sie die Kenntnis und Ihr Einverständnis.
Das könnte Ihnen auch gefallen

Katzmann Immobilien GmbH
Herr Jörg Allmannsberger
Siemensstr.31a
50374 Erftstadt
Telefon: +49 2235 9900334
HR-22211 Vodice






































